Новостройка в Нише - Пантелей
Современные квартиры в тихом районе города – для молодых, семей и инвесторов.
Всего 38 тщательно спроектированных квартир выставлены на продажу в спокойной части Пантелея. Они выделяются высоким качеством строительства, тщательно подобранными планировками и размерами, а также удачным расположением с отличной связью со всеми ключевыми точками Ниша. Эти квартиры идеально подходят для молодых пар, семей с детьми, а также для инвесторов, ищущих недвижимость, которая будет расти в цене по мере развития рынка. Выберите идеальную площадь от 20 до 65 м².




Квартиры
| Квартиры | Этаж | Площадь | Спальни | Статус | Планировка | Цена |
|---|---|---|---|---|---|---|
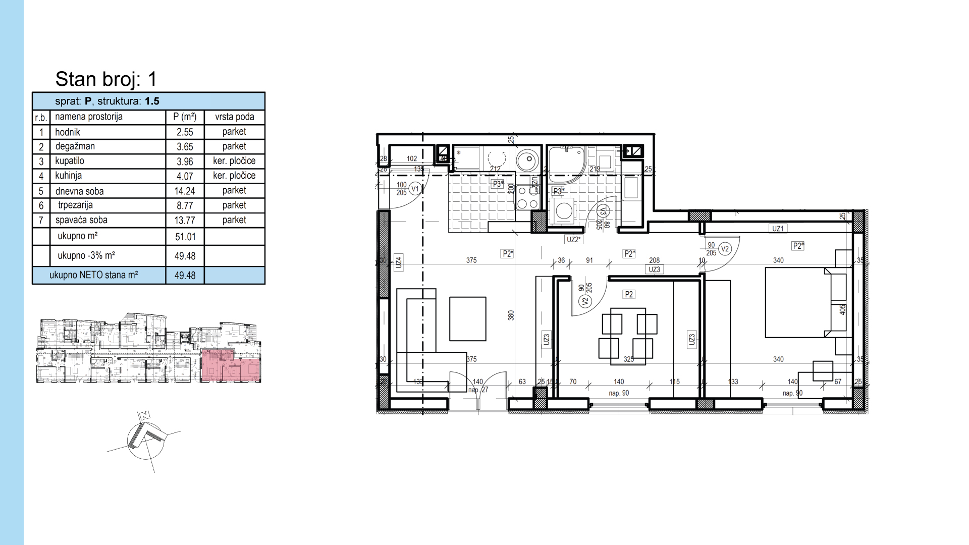
| S1 | Первый этаж | 49 m² | 2 | Доступно | Планировка | |
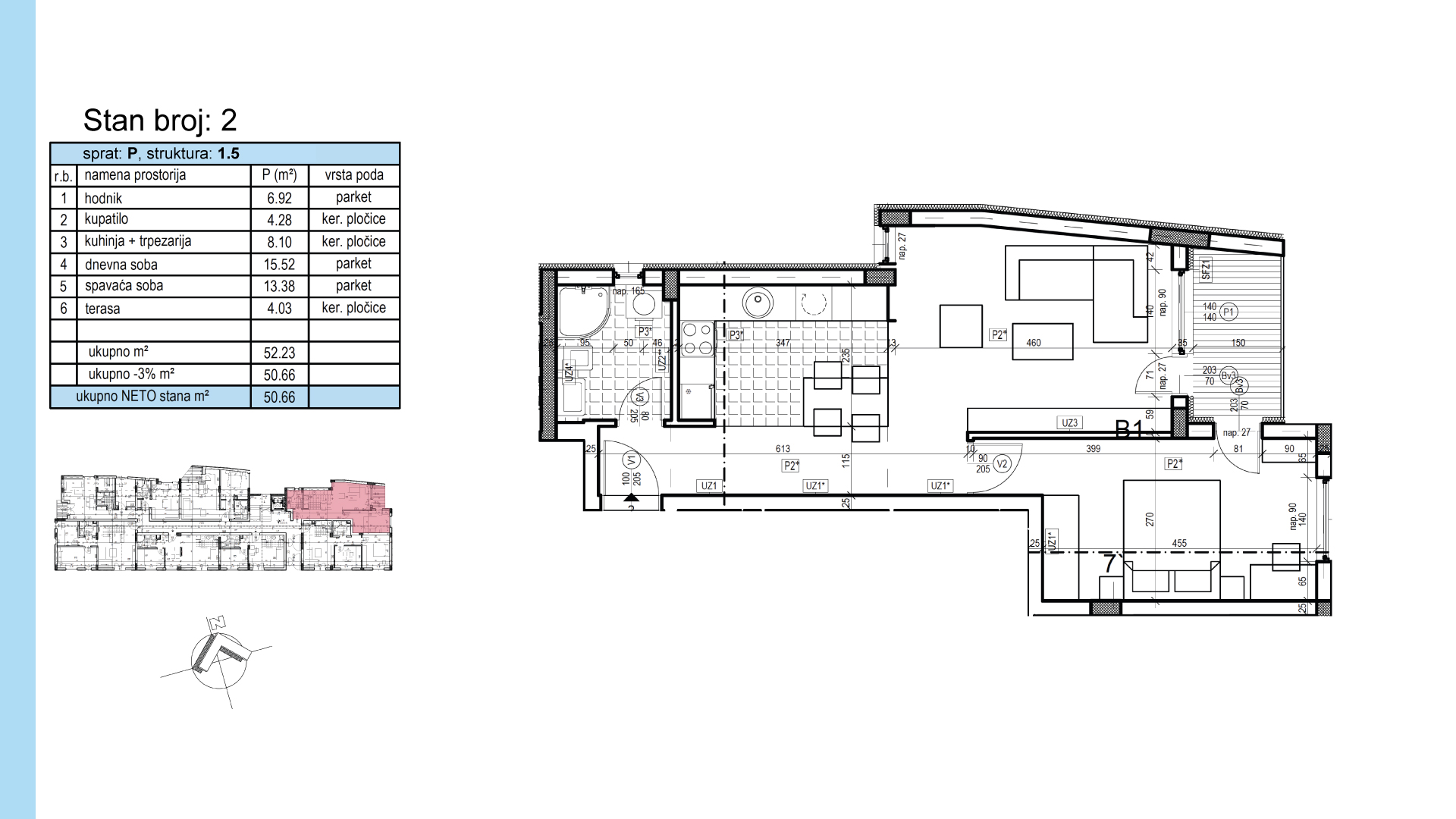
| S2 | Первый этаж | 51 m² | 1 | Доступно | Планировка | |
| S3 | Первый этаж | 45 m² | 1 | Доступно | Планировка | |
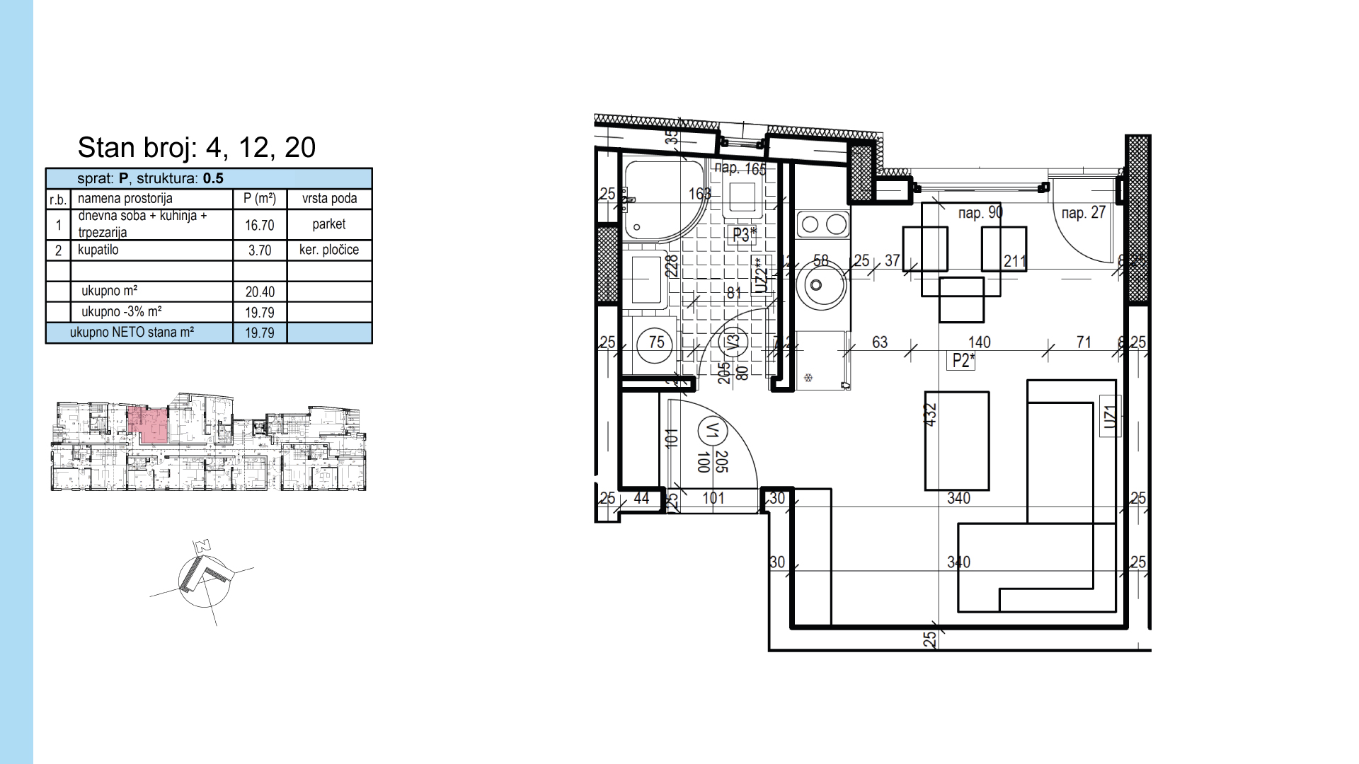
| S4, 12, 20 | Первый этаж, 1, 2 | 20 m² | 0.5 | Доступно | Планировка | |
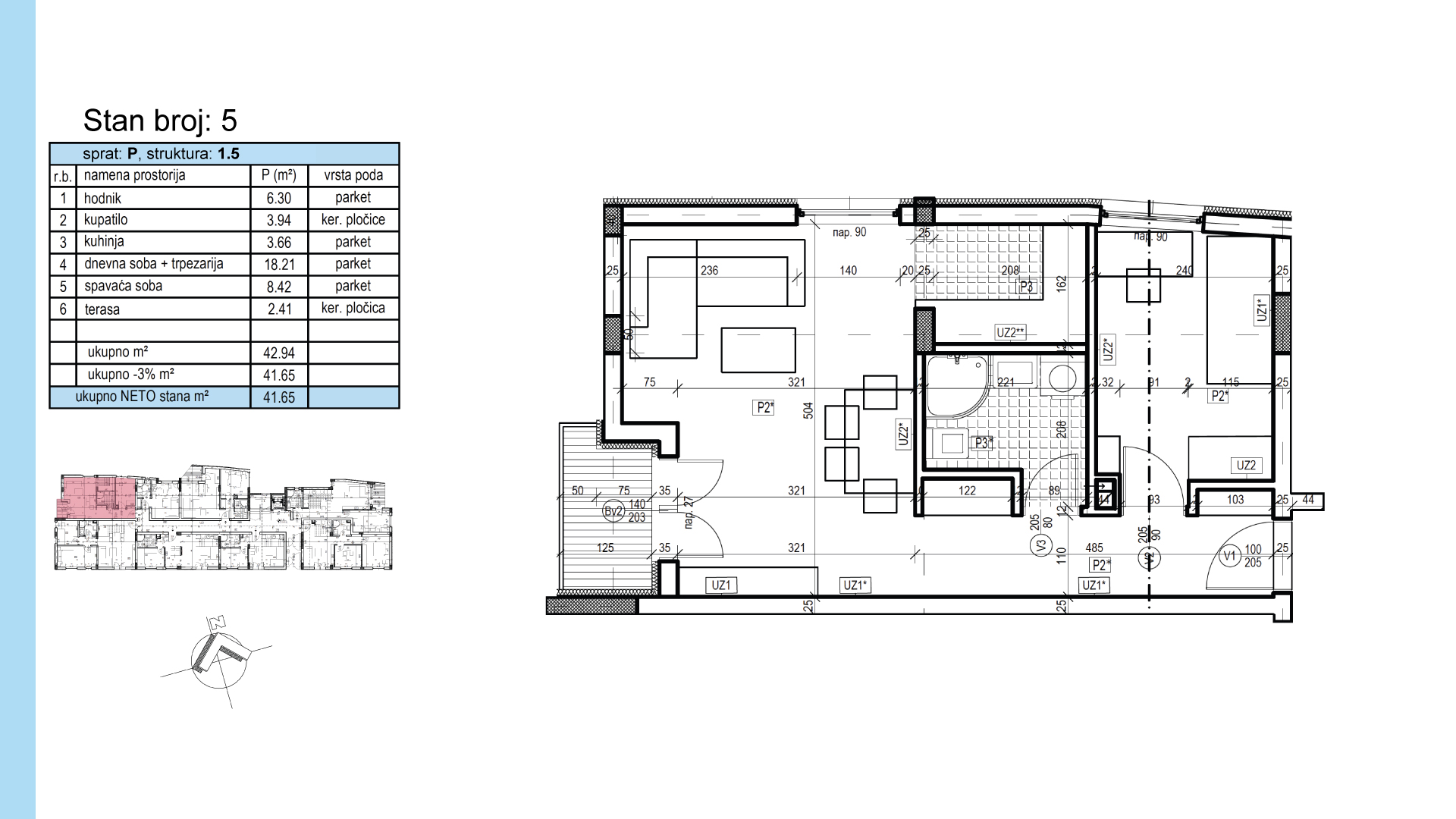
| S5 | Первый этаж | 41 m² | 1 | Доступно | Планировка | |
| S6 | Первый этаж | 52 m² | 2 | Доступно | Планировка | |
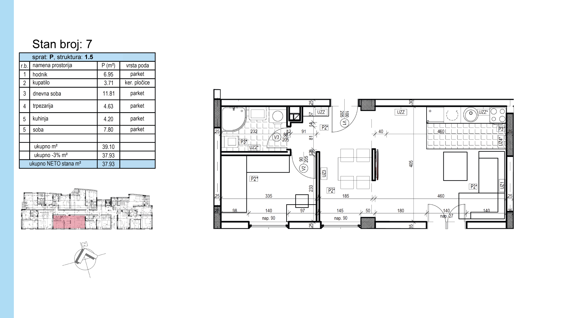
| S7 | Первый этаж | 38 m² | 1 | Доступно | Планировка | |
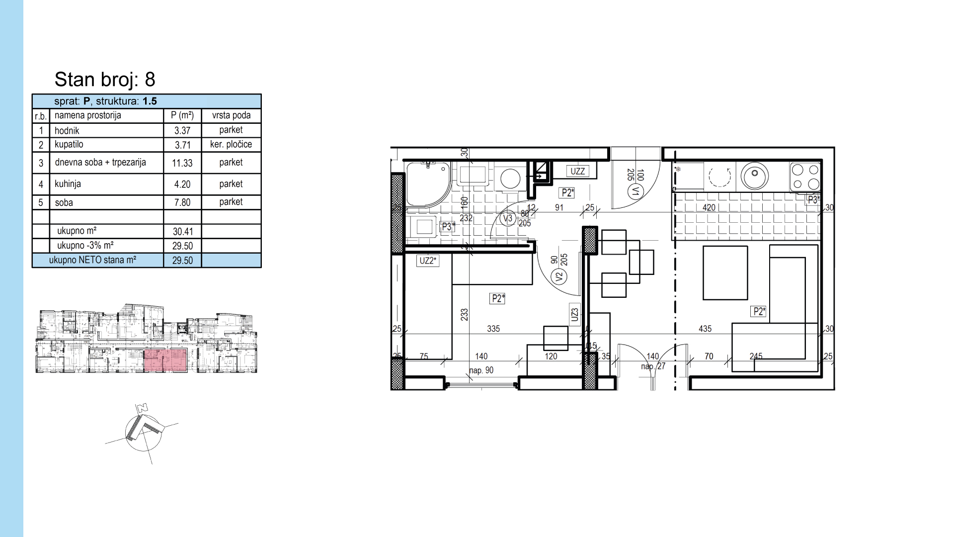
| S8 | Первый этаж | 30 m² | 1 | Доступно | Планировка | |
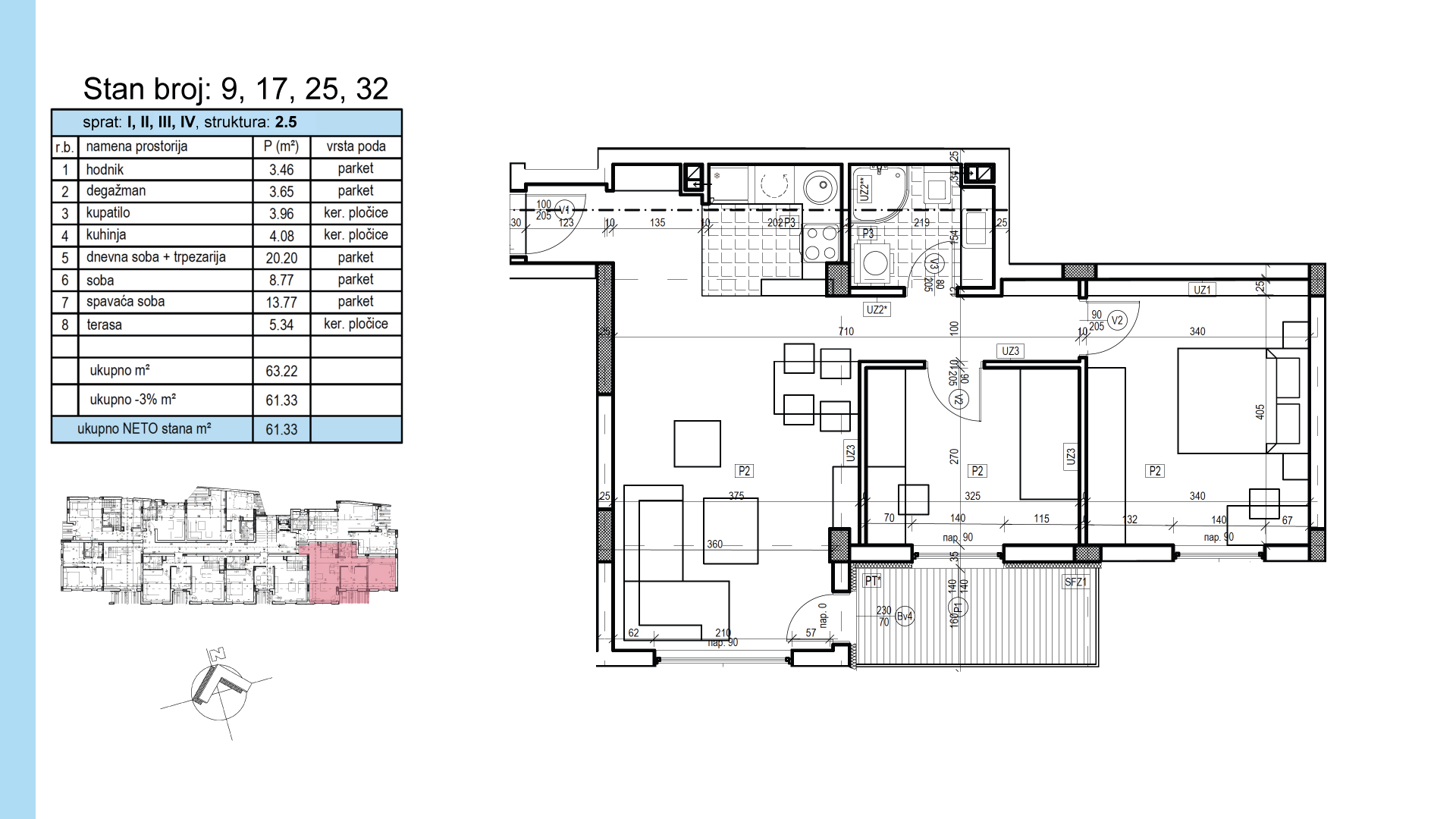
| S9, 17, 25, 32 | 1, 2, 3, 4 | 61 m² | 2 | Доступно | Планировка | |
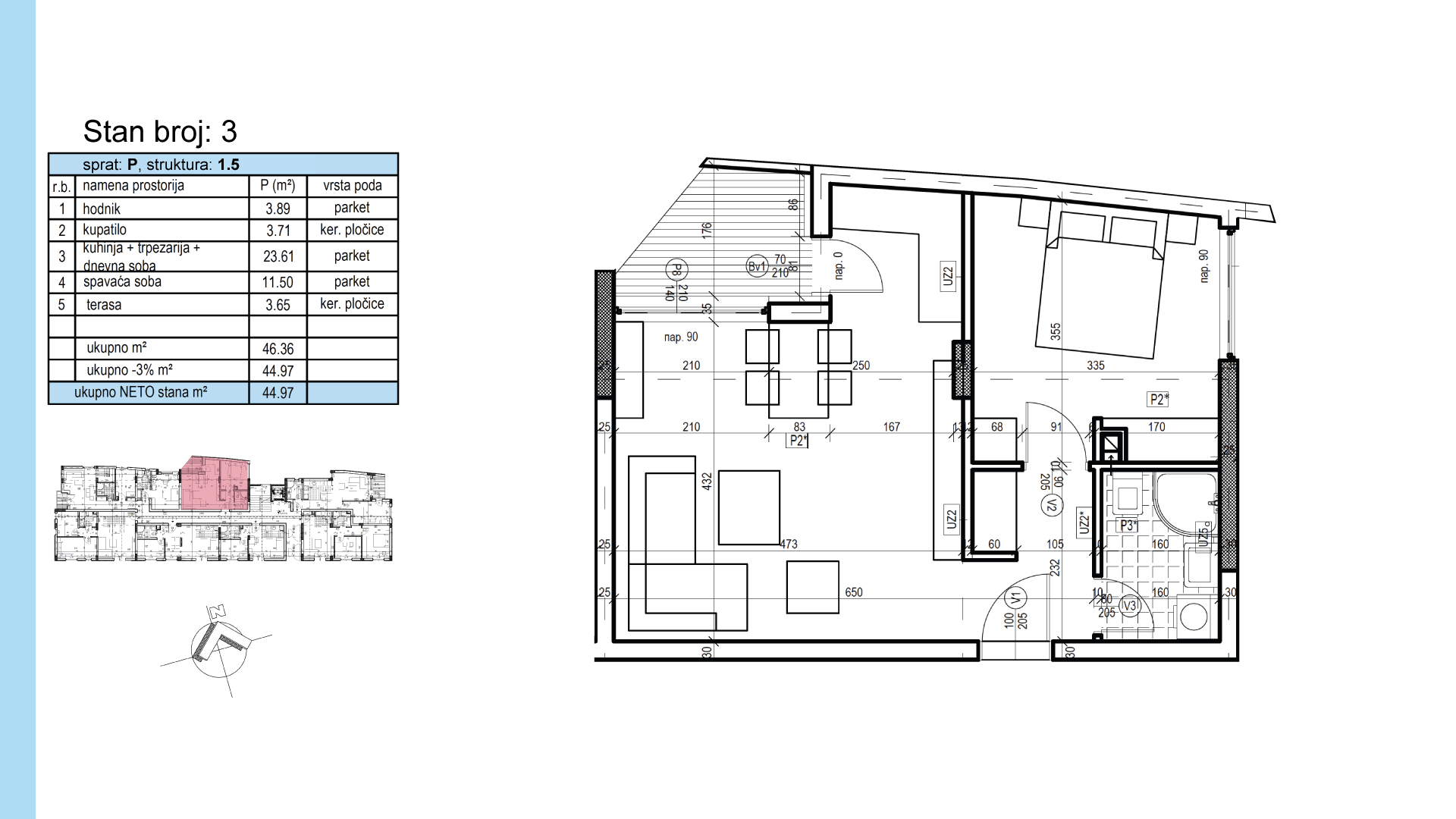
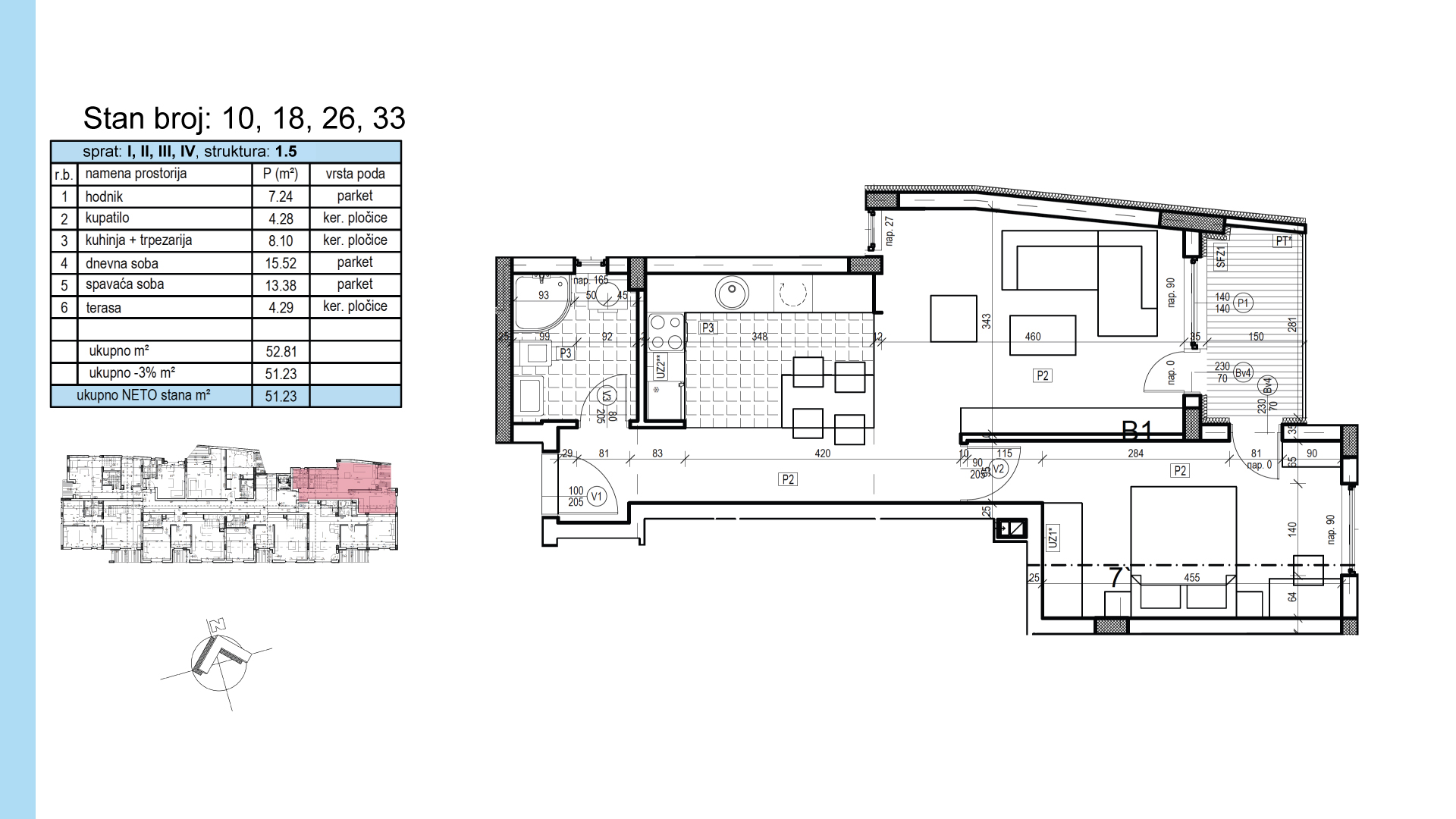
| S10, 18, 26, 33 | 1, 2, 3, 4 | 51 m² | 1 | Доступно | Планировка | |
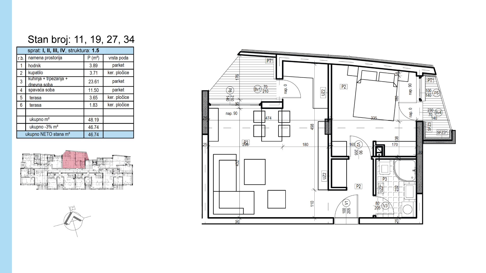
| S11,19, 27, 34 | 1, 2, 3, 4 | 47 m² | 1 | Доступно | Планировка | |
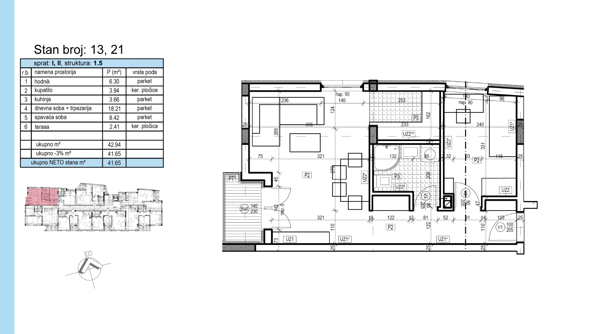
| S13,21 | 1, 2 | 42 m² | 1 | Доступно | Планировка | |
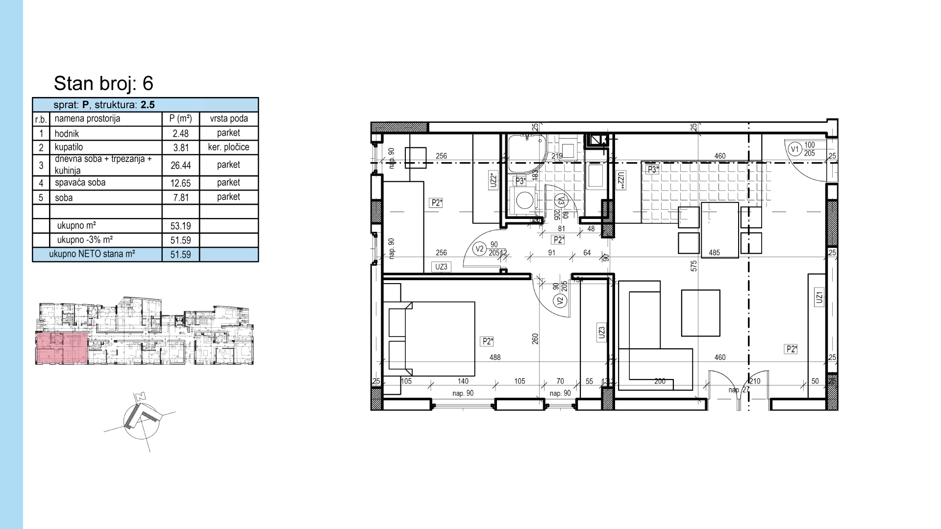
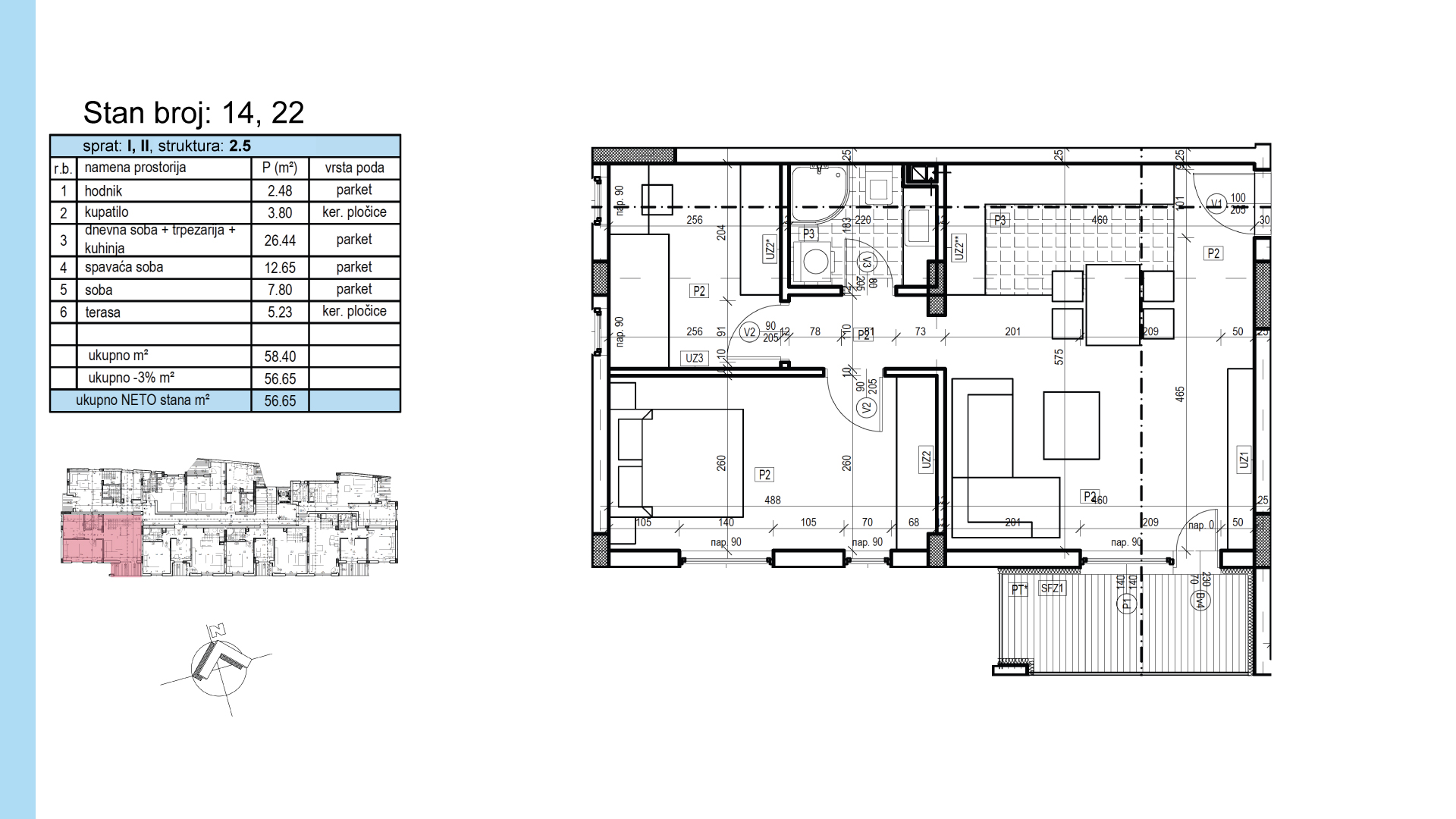
| S14, 22 | 1, 2 | 57 m² | 2 | Доступно | Планировка | |
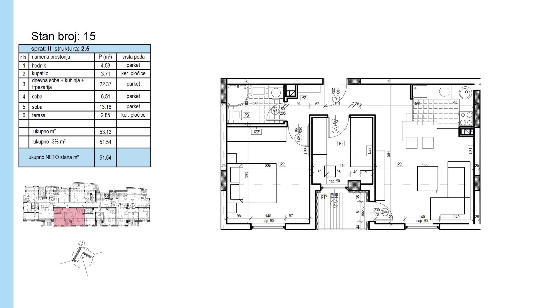
| S15 | 2 | 52 m² | 2 | Доступно | Планировка | |
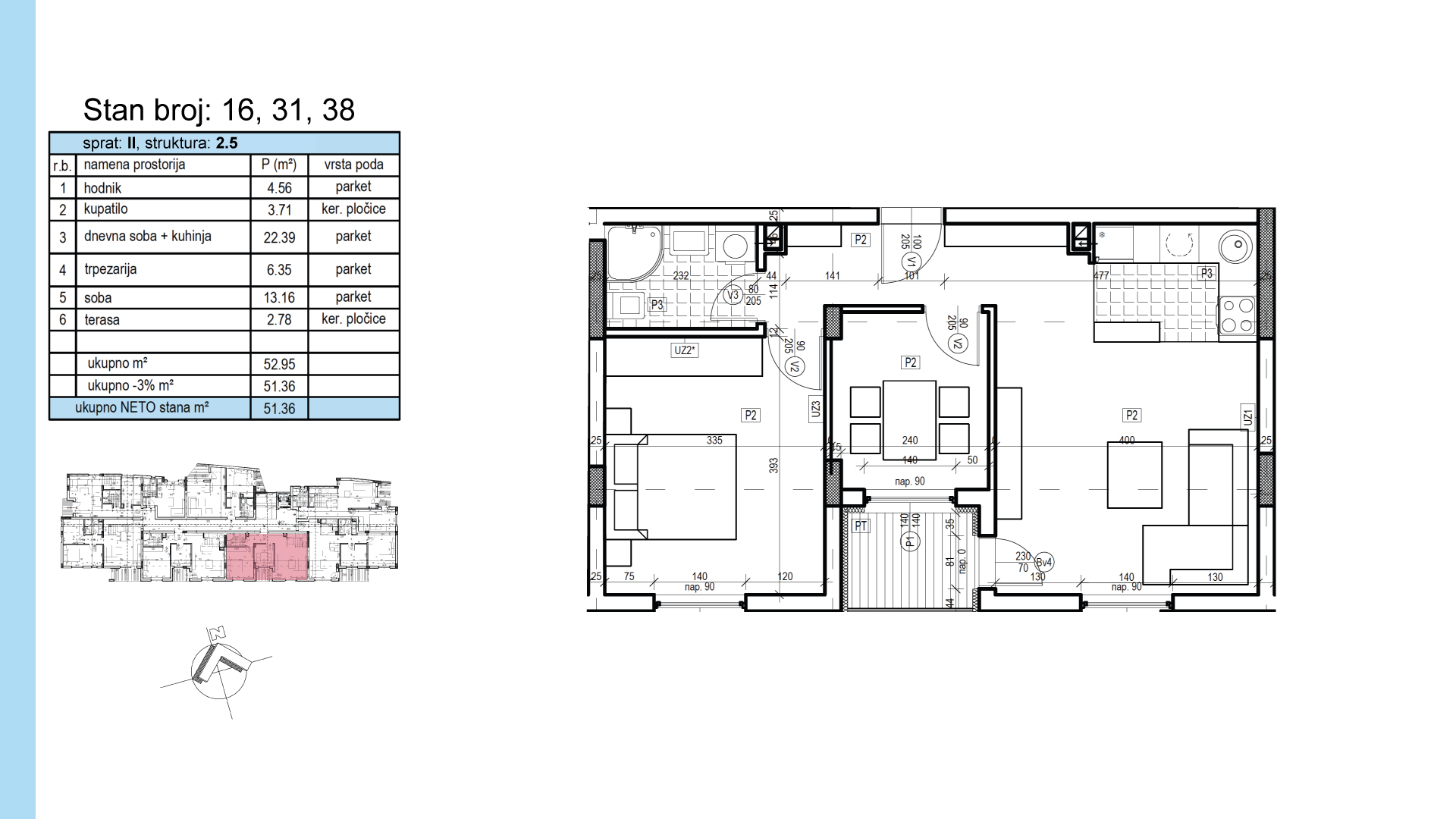
| S16,31,38 | 2, 3, 4 | 51 m² | 2 | Доступно | Планировка | |
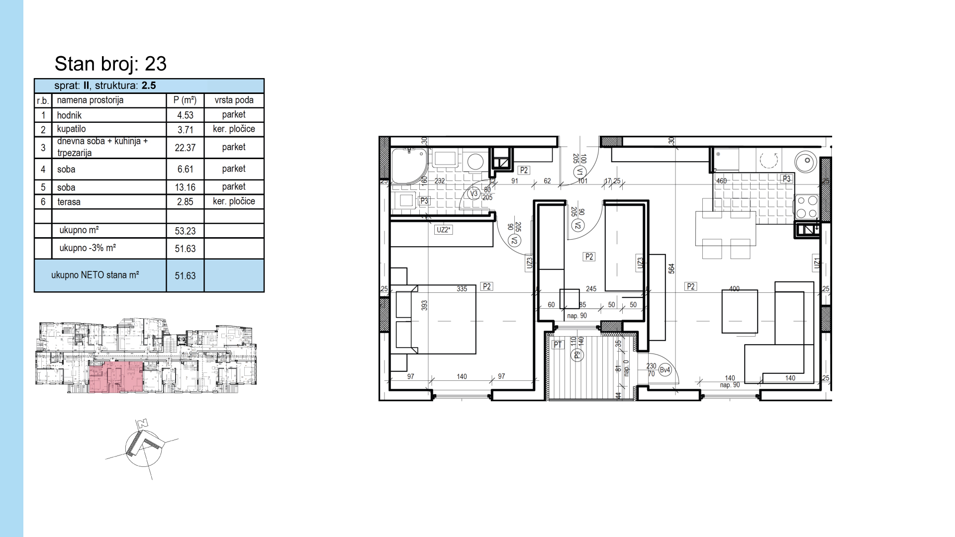
| S23 | 2 | 52 m² | 2 | Доступно | Планировка | |
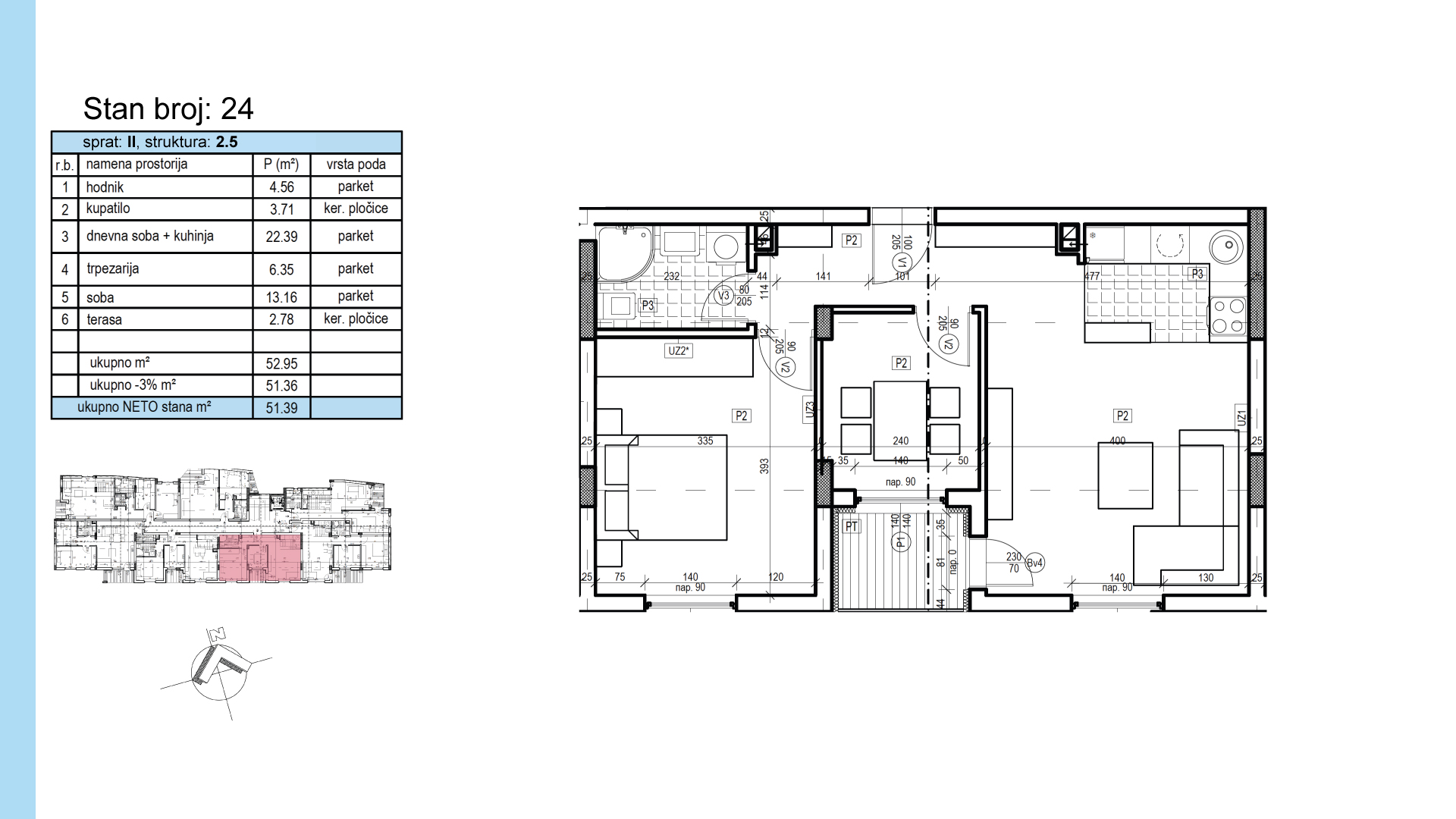
| S24 | 2 | 51 m² | 2 | Доступно | Планировка | |
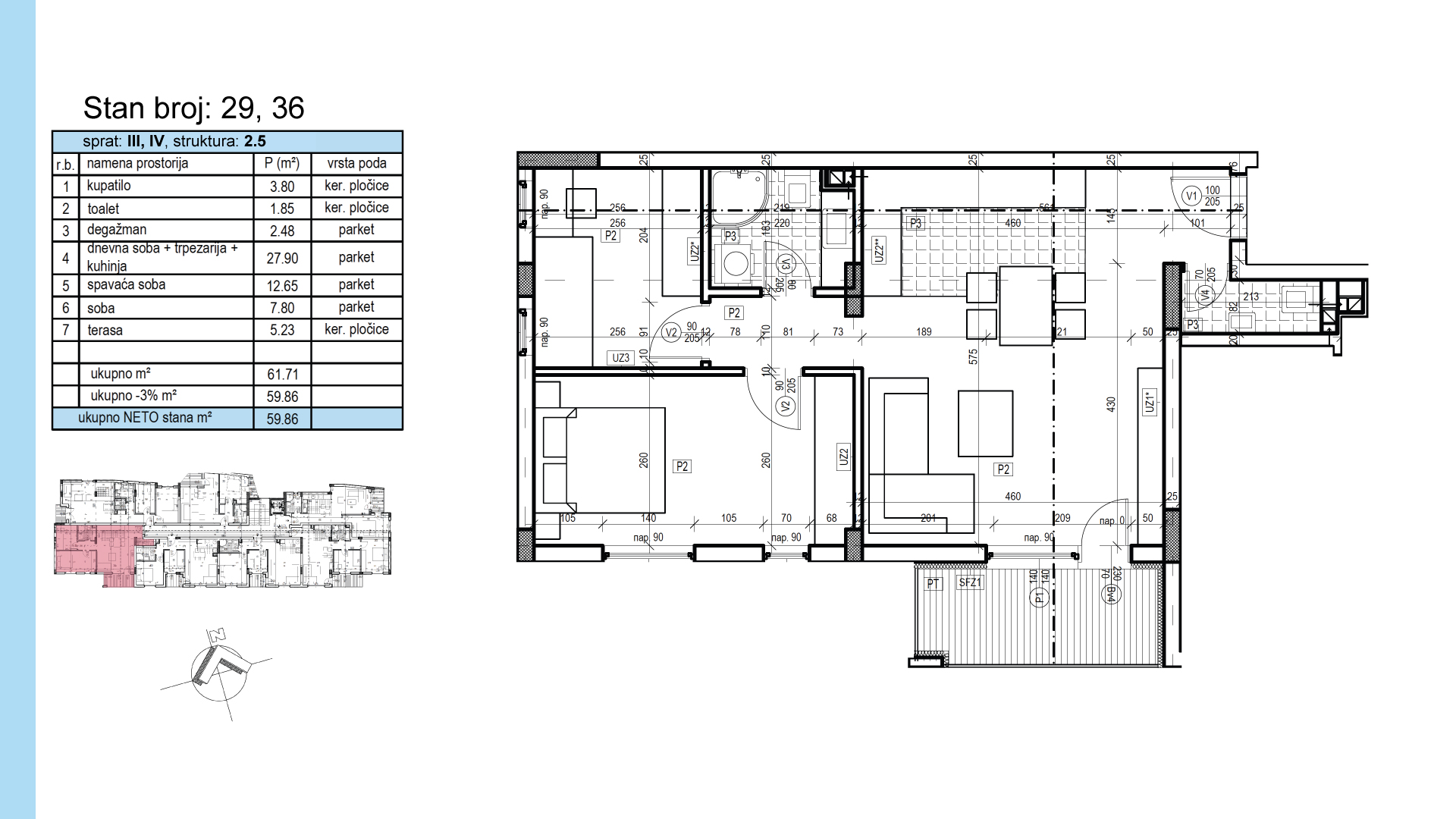
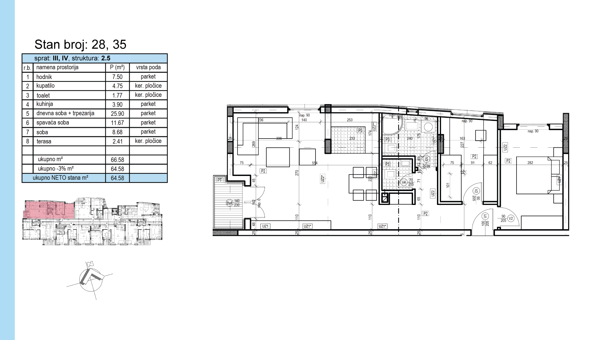
| S28, 35 | 3, 4 | 65 m² | 2 | Доступно | Планировка | |
| S29, 36 | 3, 4 | 60 m² | 2 | Доступно | Планировка | |
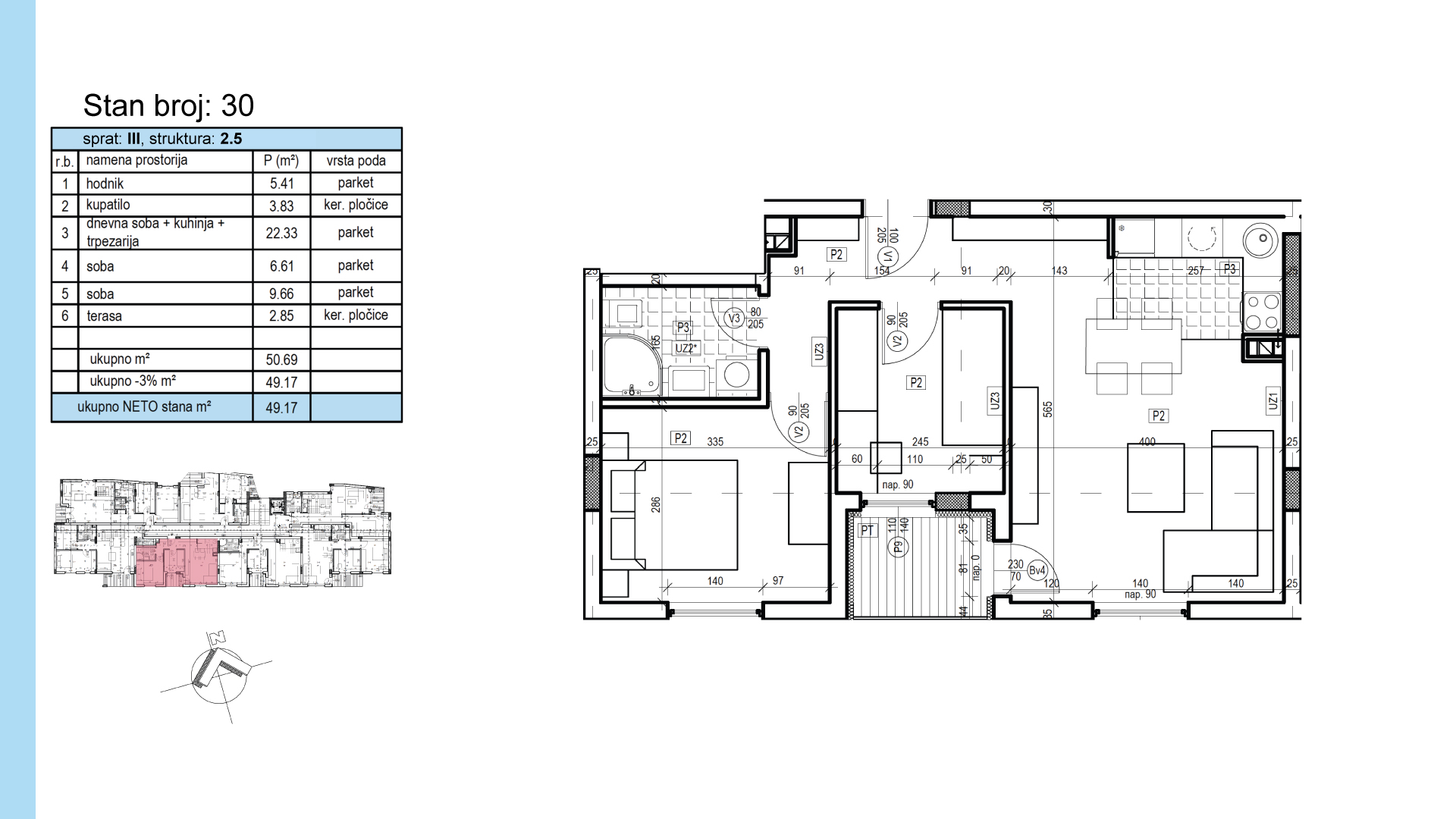
| S30 | 3 | 49 m² | 2 | Доступно | Планировка | |
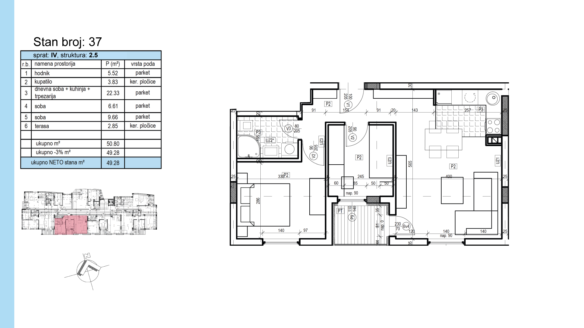
| S37 | 4 | 49 m² | 2 | Доступно | Планировка |
За всей информацией обращайтесь в отдел продаж Сити Эксперт! 018 3 404 000
Качество, на которое можно положиться
Здание реализовано строительной компанией с более чем 15-летним опытом, известной применением самых высоких стандартов строительства. Стены из термоблоков с улучшенной теплоизоляцией, пластиковые окна с двойным стеклом с низким энергопотреблением, надежные входные двери и высококачественные напольные покрытия обеспечивают долговечность и энергоэффективность. Лифт, пандус для инвалидов, видеонаблюдение и домофоны в каждой квартире создают безопасность и удобство в повседневной жизни.
- Фасадные стены из качественных термоблоков с теплоизоляцией
- Перегородки между квартирами со звукоизоляцией
- Демит-фасад с теплоизоляцией 10 см
- ПВХ-окна с двойным стеклопакетом
- Алюминиевые рольставни
- Противопожарные входные двери
- Внутренние двери из МДФ
- Паркетные полы
- Керамика в ванных и противоскользящая керамика на террасах
- Подвесные унитазы с встроенным бачком
- Душевая кабина walk-in
- Установка для отопления
- Подготовка для монтажа кондиционера и отведения конденсата
- Кладовые к каждой квартире
За всей информацией обращайтесь в отдел продаж Сити Эксперт! 018 3 404 000
Расположение – тишина и удобство
Новостройка находится на тихой улице в Пантелее, но в то же время рядом с Сомборским бульваром и всеми необходимыми объектами: детскими садами, школами, рынками, супермаркетами и медицинскими учреждениями. Центр города всего в 3,5 км, что делает повседневную жизнь удобной для сотрудников, студентов и активных жителей.
- Детский сад «Вишница» – 600 м
- Детский сад «Вилин град» – 800 м
- Начальная школа «Чегар» – 1 км
- Начальная школа «Мирослав Антич» – 1,5 км
- Экономическая школа – 2 км
- Торговая школа – 2 км
- Школа гостиничного дела – 2 км
- Супермаркет Idea – 200 м
- Аптека Beladona – 350 м
- Lidl – 1 км
- Рынок Durlanska – 1 км
- Заправка – 800 м
- Центр города Ниш – 3,5 км
Наиболее востребованные квартиры: 20–65 м²
В продаже однокомнатные, двухкомнатные квартиры и студия, все с кладовыми, террасами и функциональной планировкой для комфортного проживания. Парковочные и гаражные места доступны за дополнительную плату.
Парковка:
17 гаражных мест и 62 парковочных места на территории
Модели оплаты
Оплата наличными
Oплата через кредит
Наличные: график оплаты по договоренности с застройщиком
Позвоните для полной информации: 018 3 404 000
Ипотека: возможна с 20% первоначальным взносом
Позвоните для полной информации: 018 3 404 000
За всей информацией обращайтесь в отдел продаж Сити Эксперт! 018 3 404 000
Опыт и репутация
Проект реализован строительной компанией с многолетним опытом строительства высококачественных жилых объектов. Философия компании сосредоточена на использовании лучших материалов и высококачественном исполнении для удовлетворения клиентов, что подтверждают все предыдущие проекты.







