Novogradnja Niš - Pantelej
Moderna novogradnja u mirnom delu grada – za mlade, porodice i investitore
U sklopu savremene nove zgrade u pripremi je 38 stanova na prodaju u mirnom delu Panteleja. Izdvaja ih kvalitet gradnje, sjajnom selekcijom kvadratura i struktura, a nalaze se na adresi koja je dobro povezana sa svim ključnim lokacijama u Nišu. Stanovi su idealni za mlade parove, porodice sa decom, kao i za investitore koji traže nekretninu čija će se vrednost uvećavati sa razvojem tržišta. Izaberite svoju idealnu kvadraturu od 29 do 64 m².




Stanovi u ponudi
| Broj stana | Sprat | Površina | Spavaće sobe | Status | Plan | Cena |
|---|---|---|---|---|---|---|
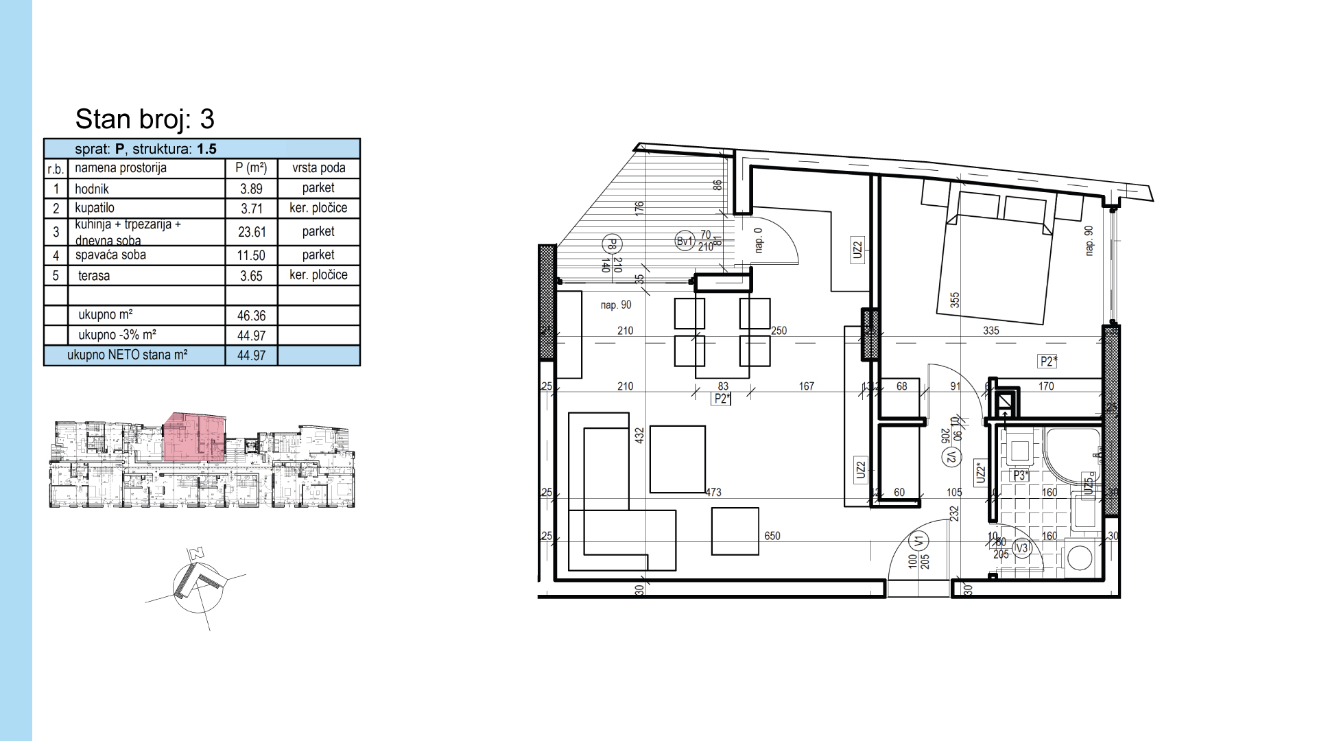
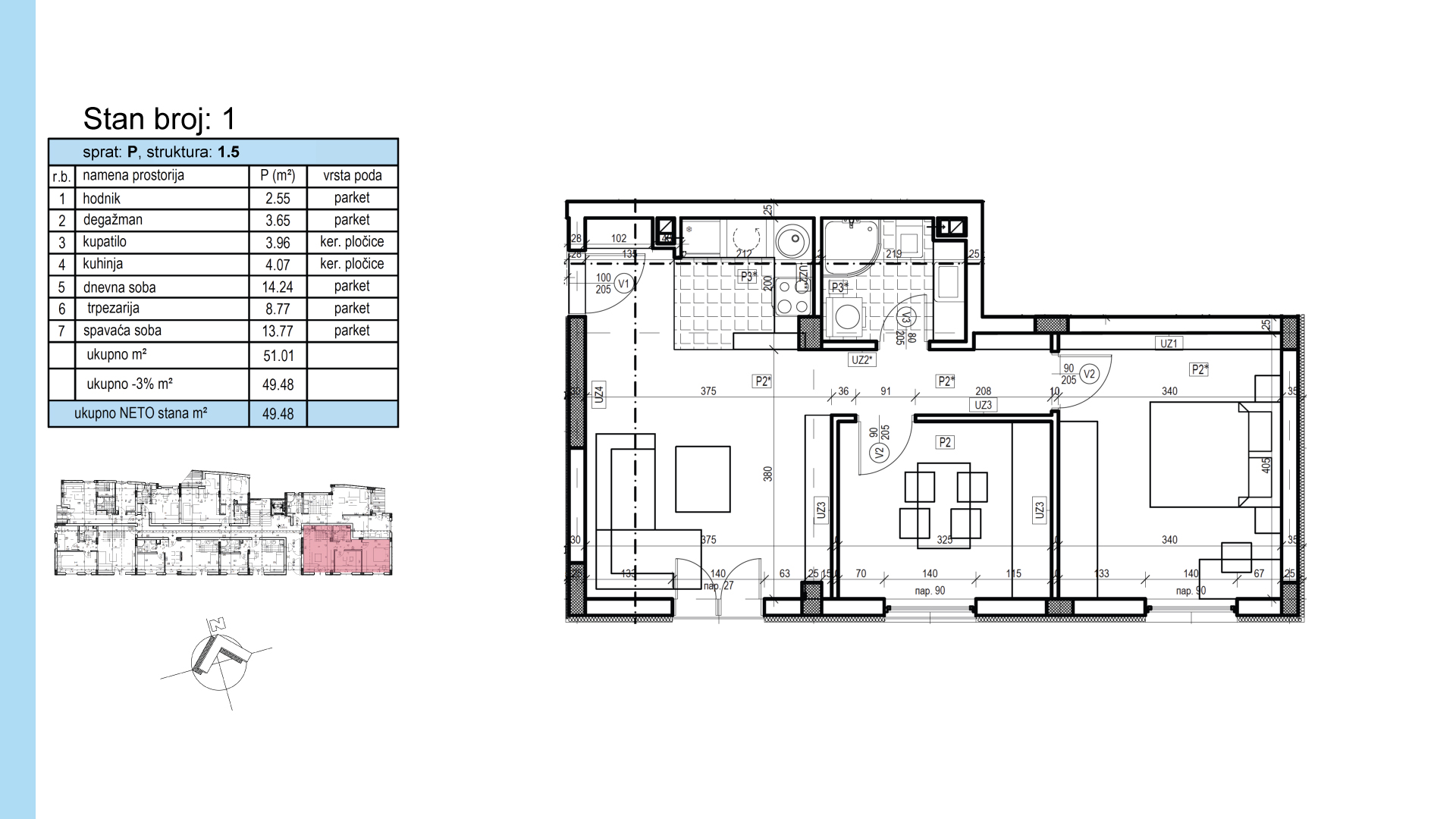
| S1 | Prizemlje | 49 m² | 2 | Dostupan | Plan stana | |
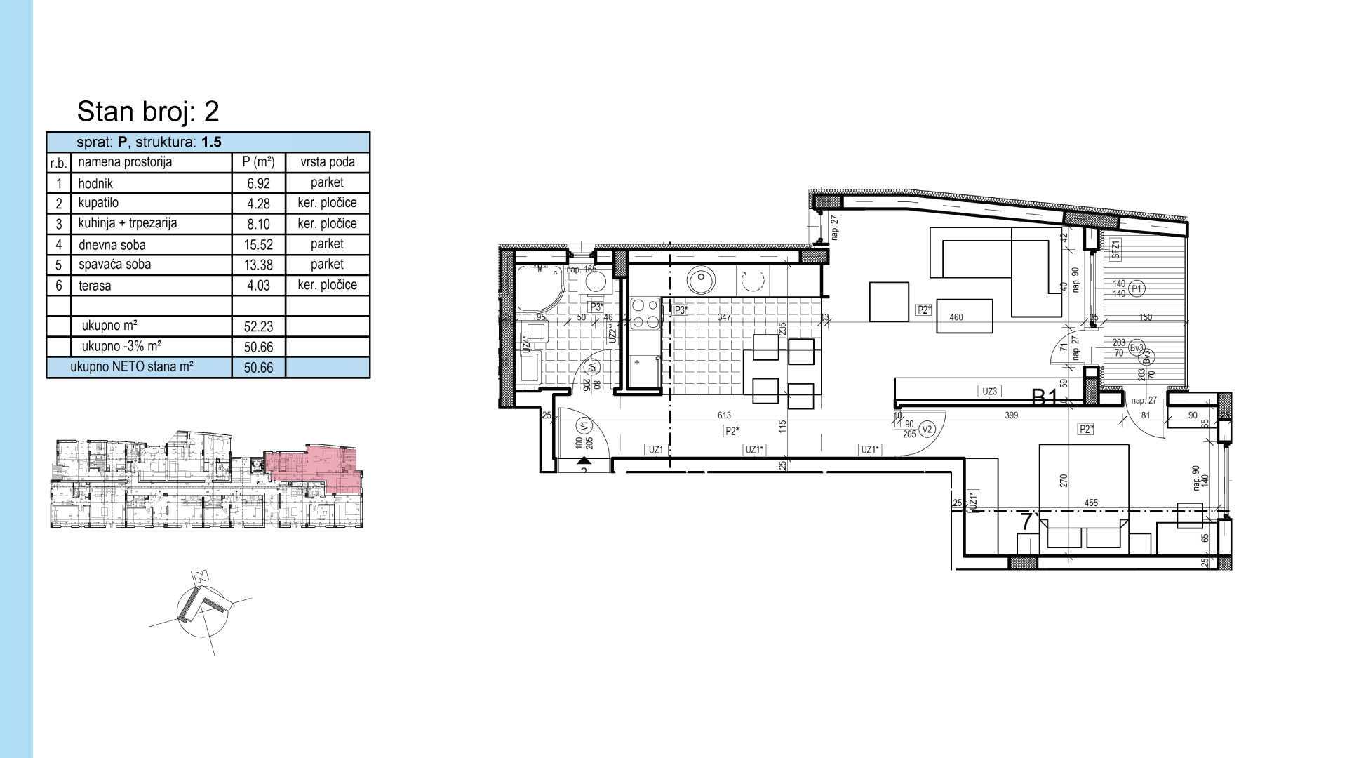
| S2 | Prizemlje | 51 m² | 1 | Dostupan | Plan stana | |
| S3 | Prizemlje | 45 m² | 1 | Dostupan | Plan stana | |
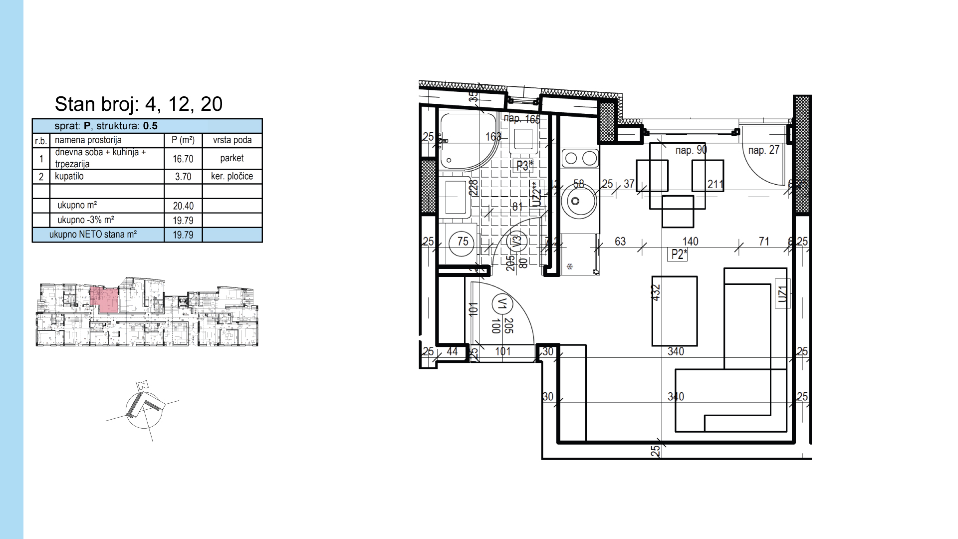
| S4, 12, 20 | Prizemlje, 1, 2 | 20 m² | 0.5 | Dostupan | Plan stana | |
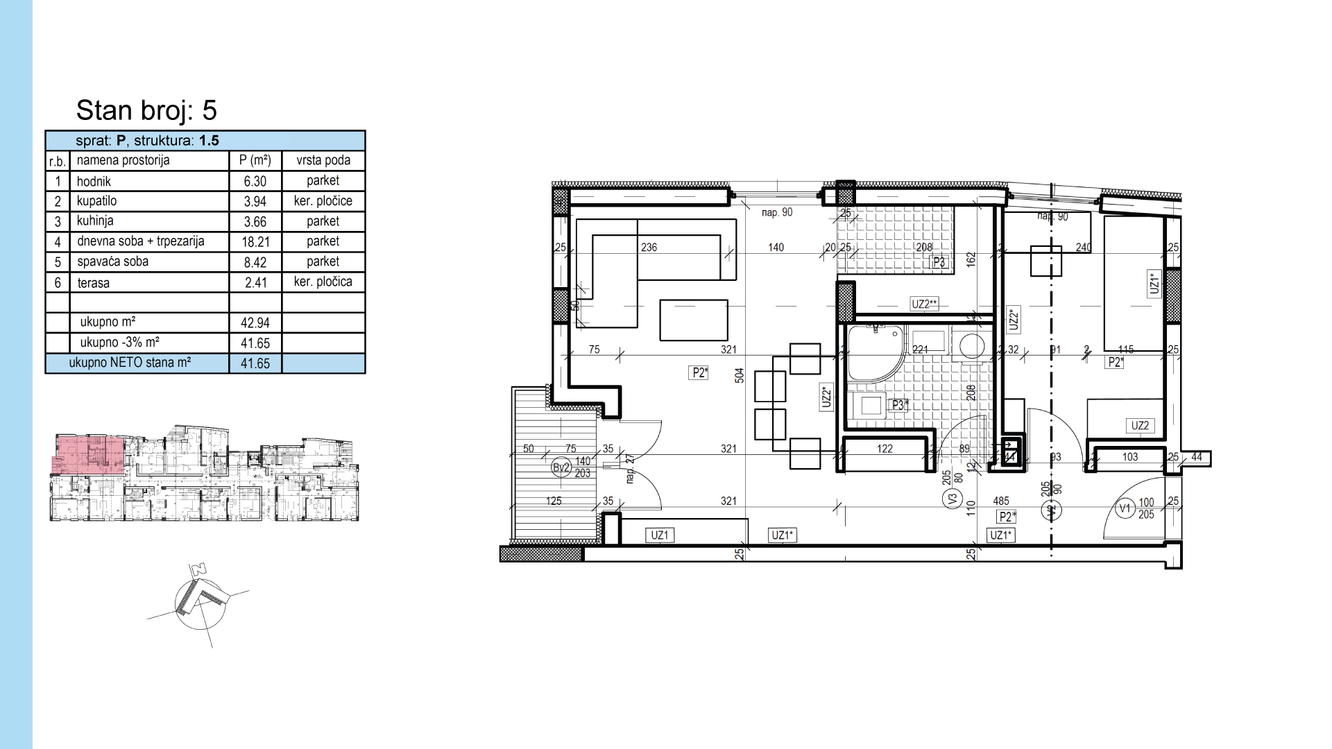
| S5 | Prizemlje | 41 m² | 1 | Dostupan | Plan stana | |
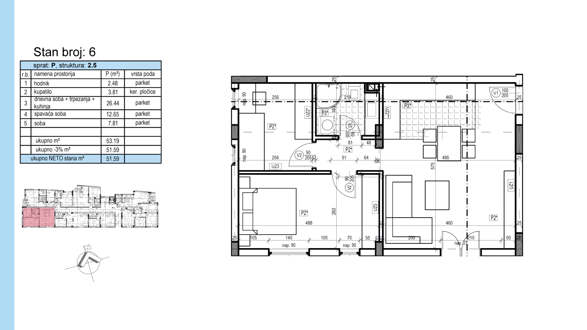
| S6 | Prizemlje | 52 m² | 2 | Dostupan | Plan stana | |
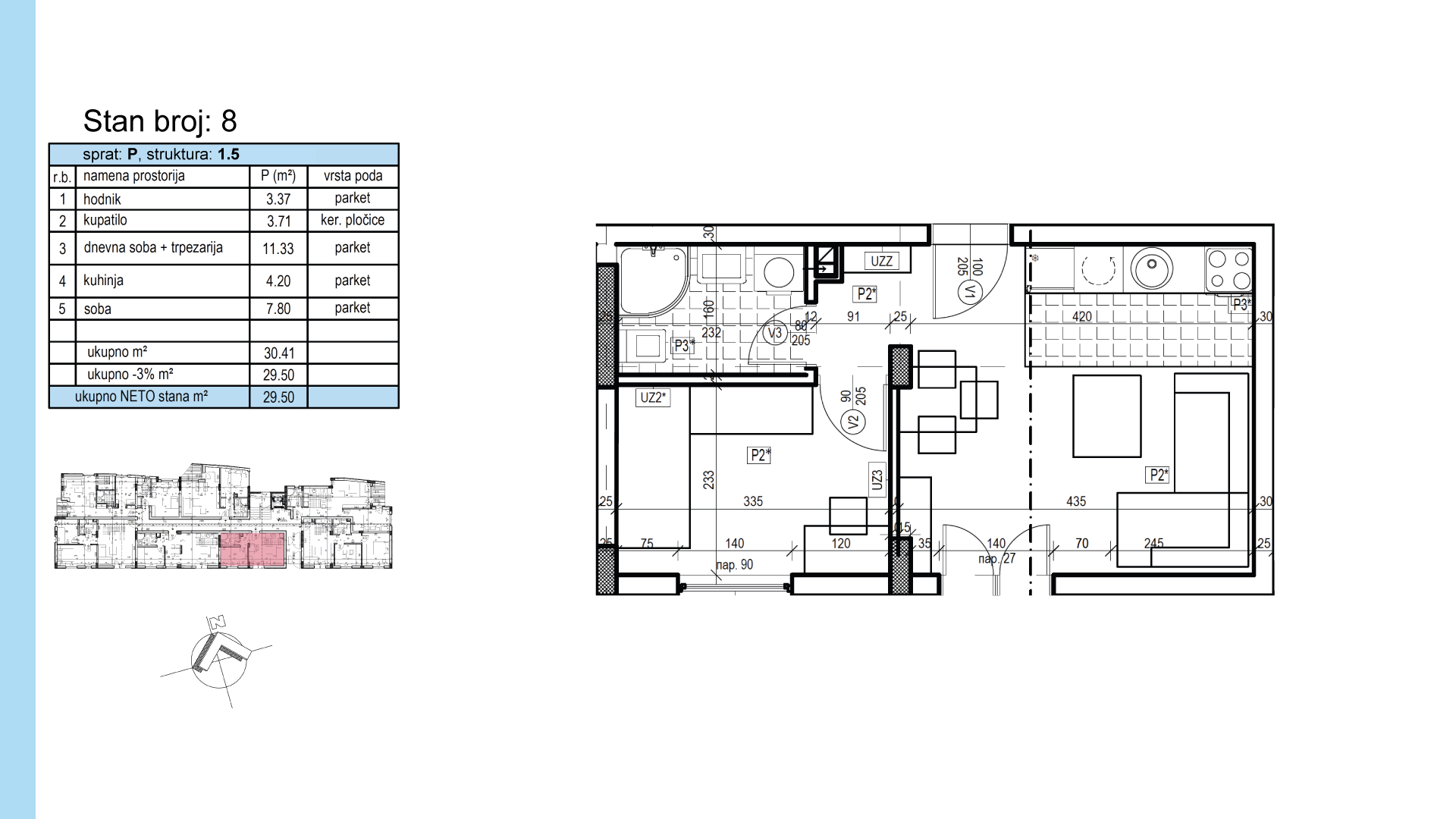
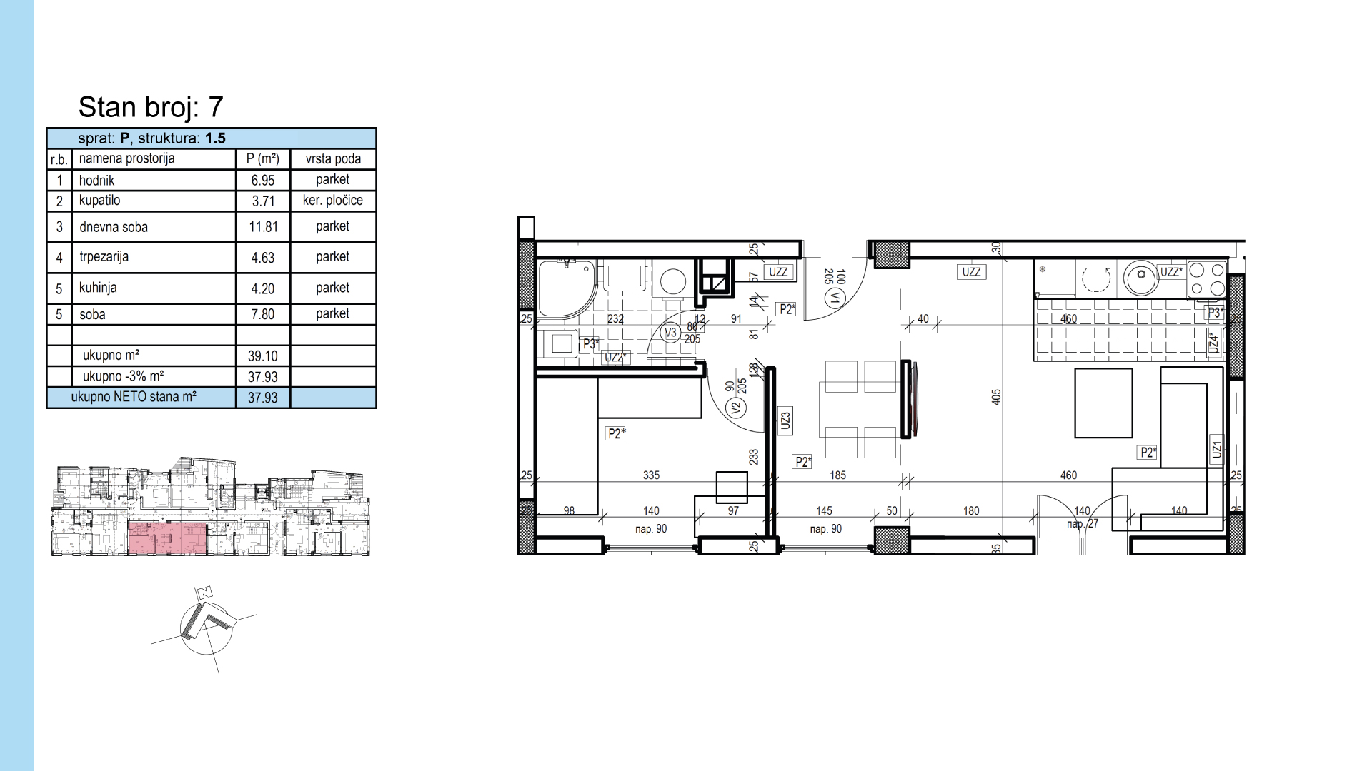
| S7 | Prizemlje | 38 m² | 1 | Dostupan | Plan stana | |
| S8 | Prizemlje | 30 m² | 1 | Dostupan | Plan stana | |
| S9, 17, 25, 32 | 1, 2, 3, 4 | 61 m² | 2 | Dostupan | Plan stana | |
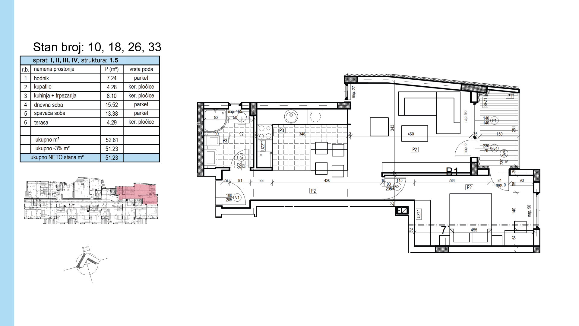
| S10, 18, 26, 33 | 1, 2, 3, 4 | 51 m² | 1 | Dostupan | Plan stana | |
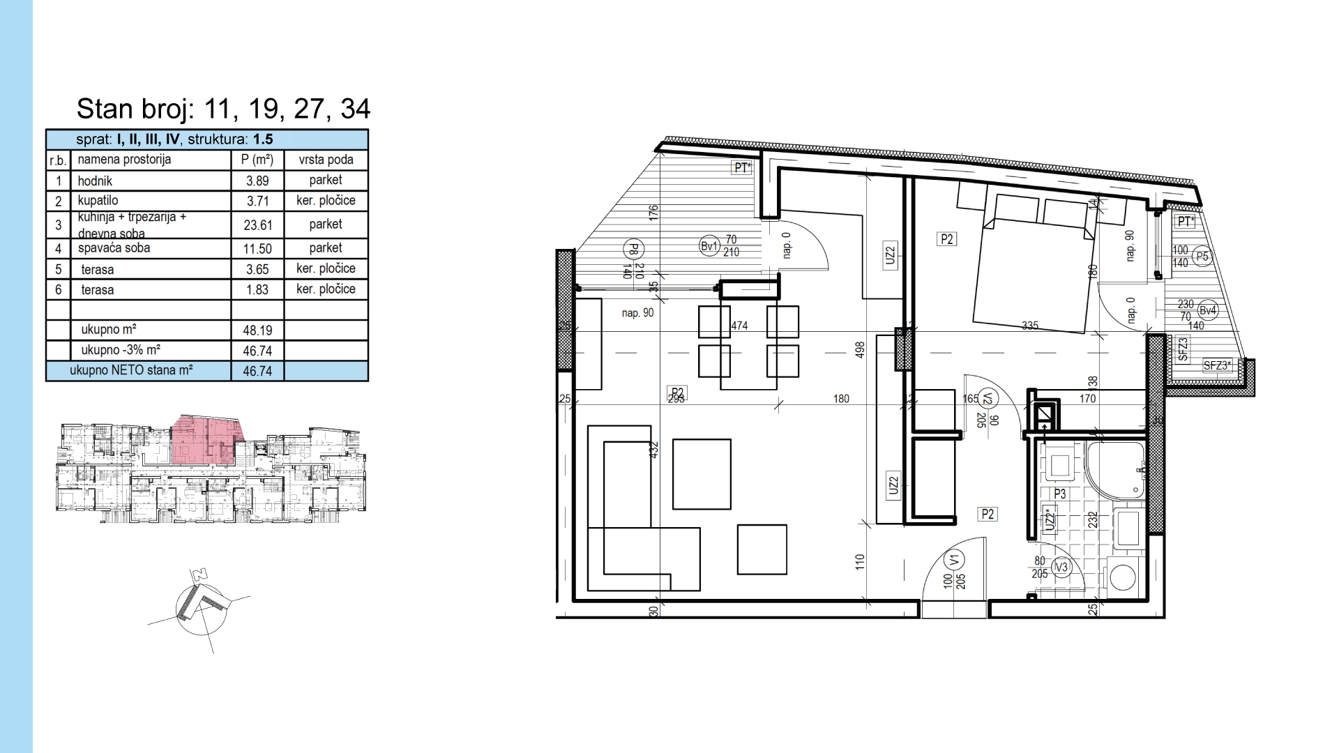
| S11,19, 27, 34 | 1, 2, 3, 4 | 47 m² | 1 | Dostupan | Plan stana | |
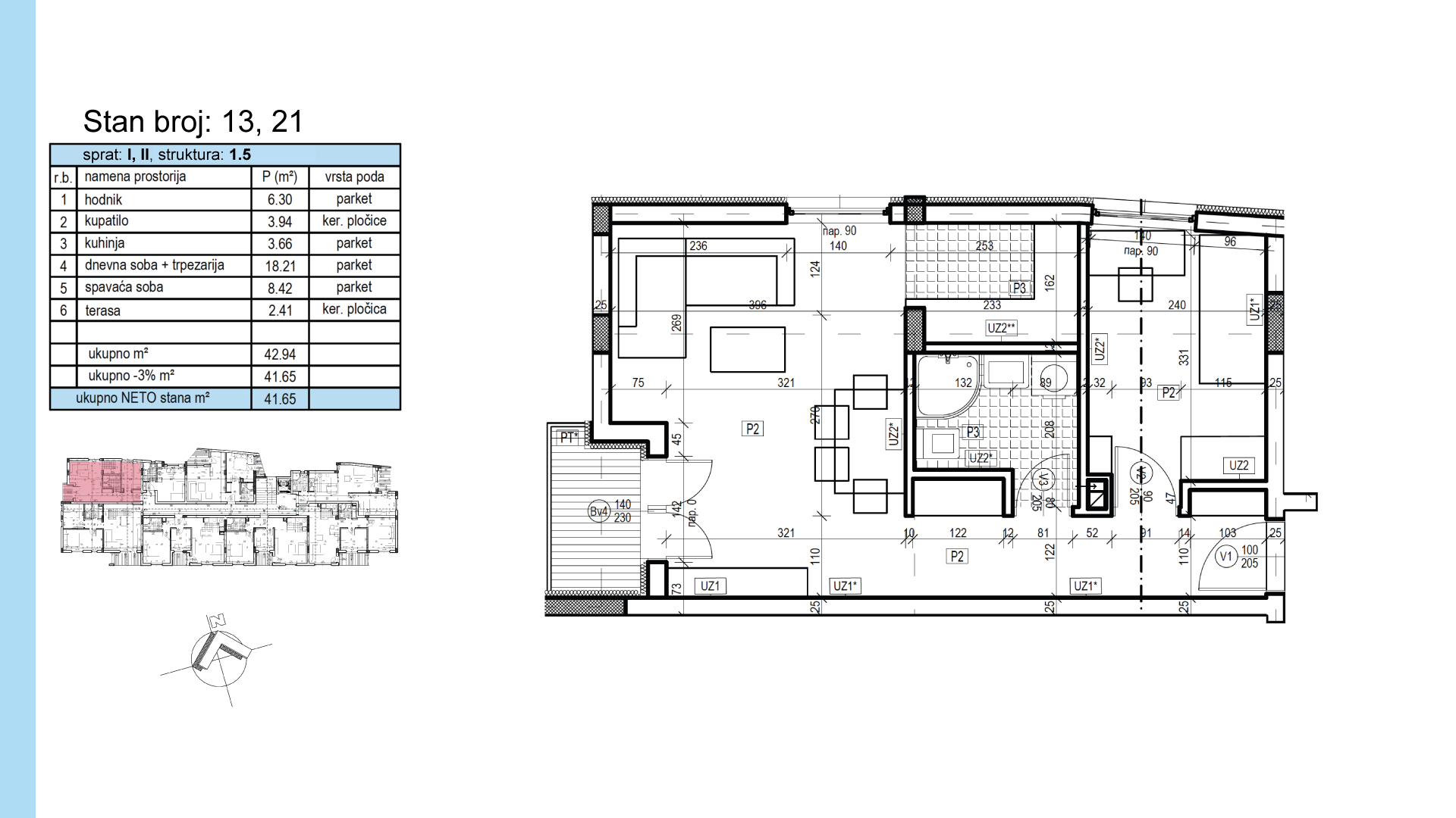
| S13,21 | 1, 2 | 42 m² | 1 | Dostupan | Plan stana | |
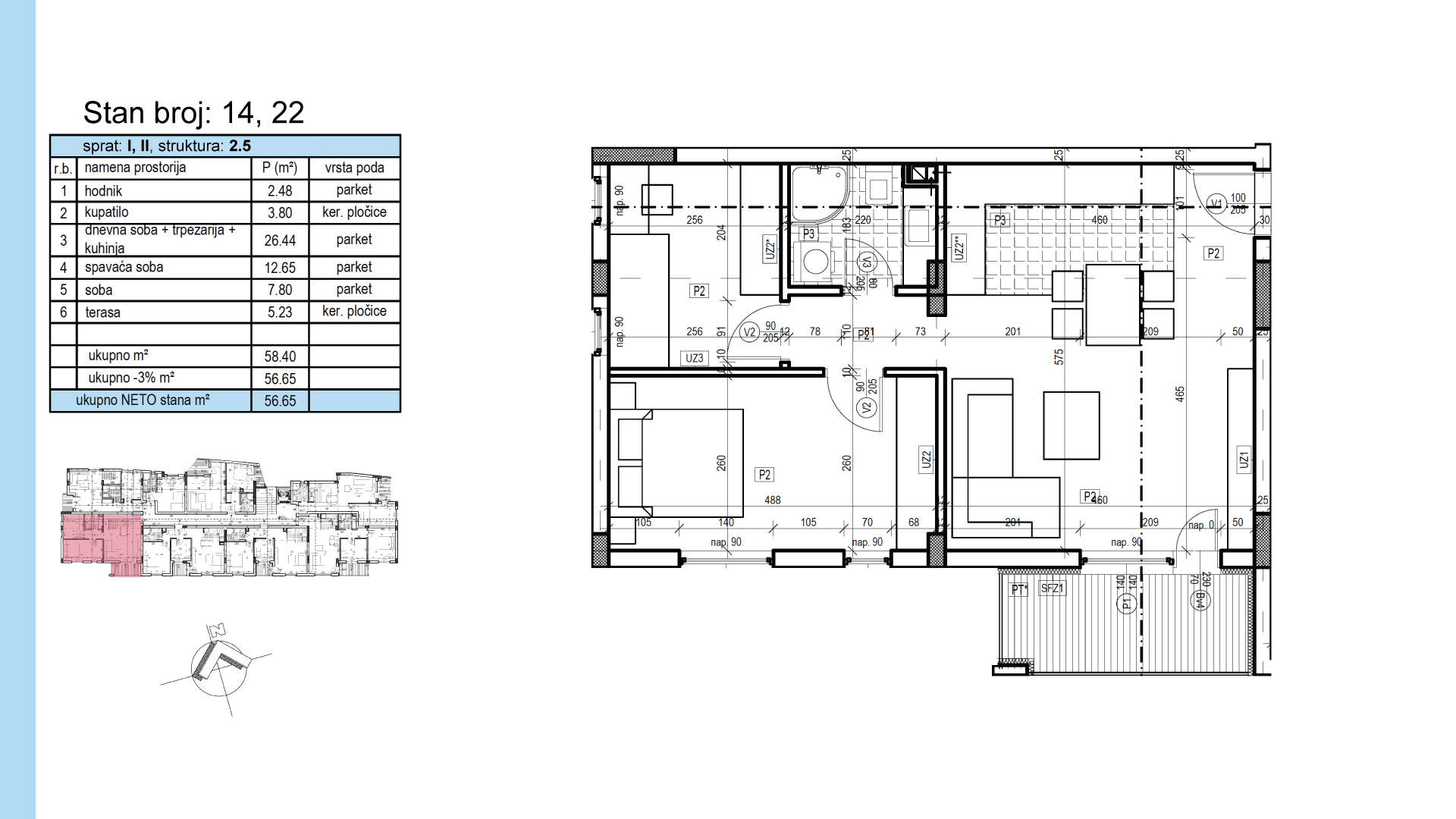
| S14, 22 | 1, 2 | 57 m² | 2 | Dostupan | Plan stana | |
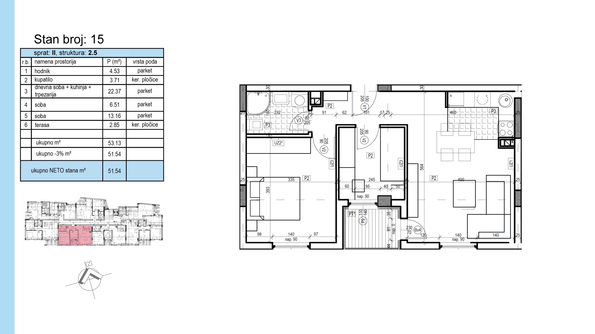
| S15 | 2 | 52 m² | 2 | Dostupan | Plan stana | |
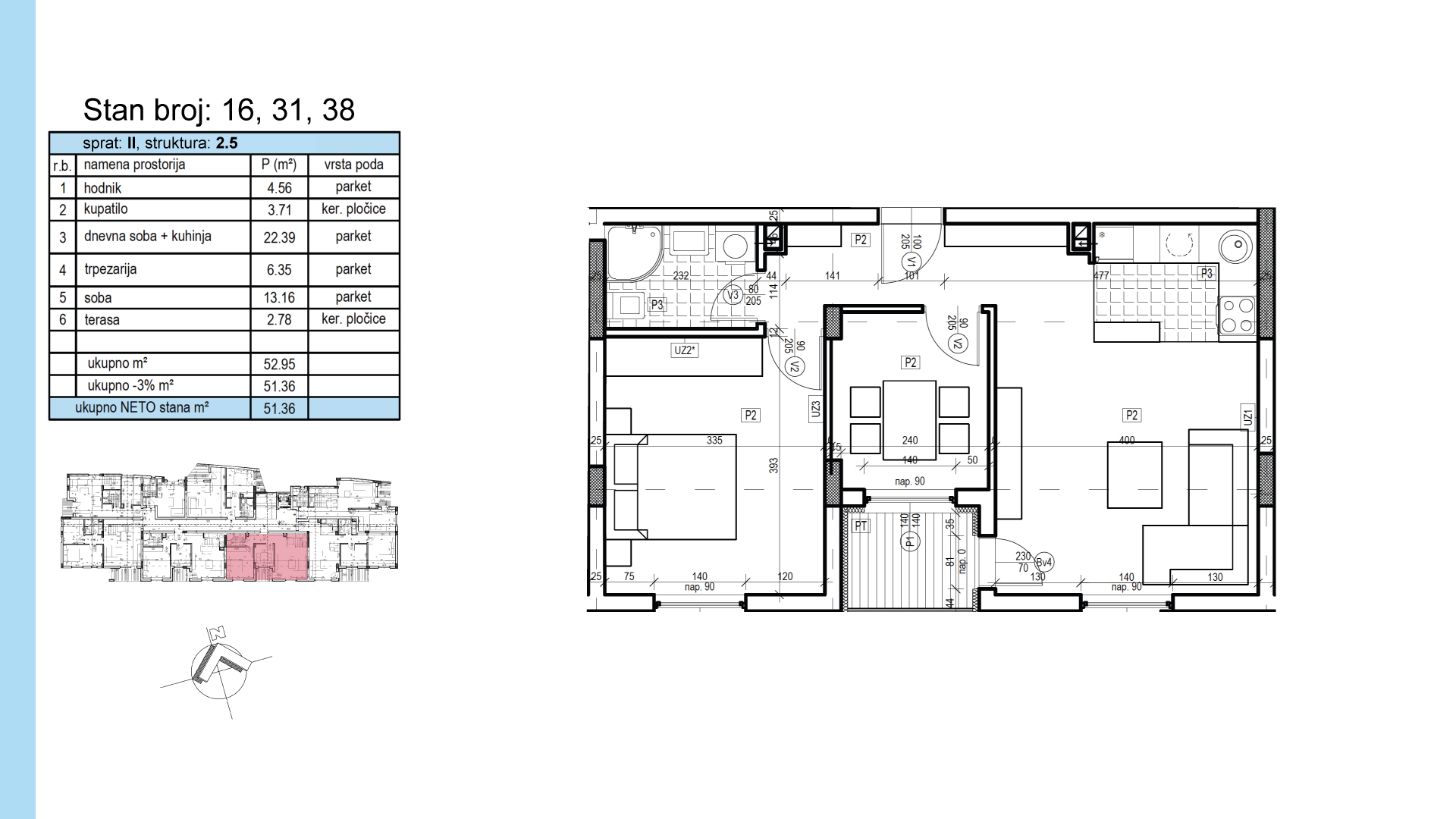
| S16,31,38 | 2, 3, 4 | 51 m² | 2 | Dostupan | Plan stana | |
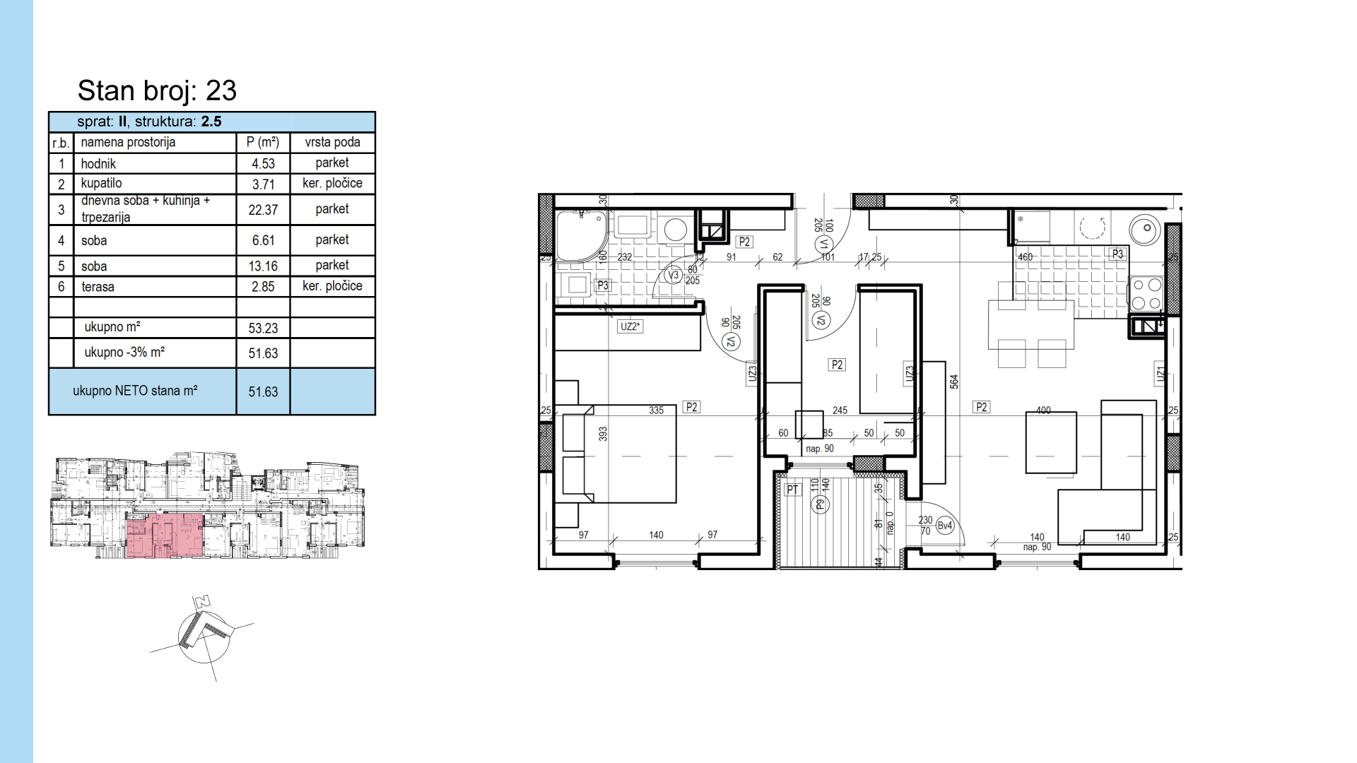
| S23 | 2 | 52 m² | 2 | Dostupan | Plan stana | |
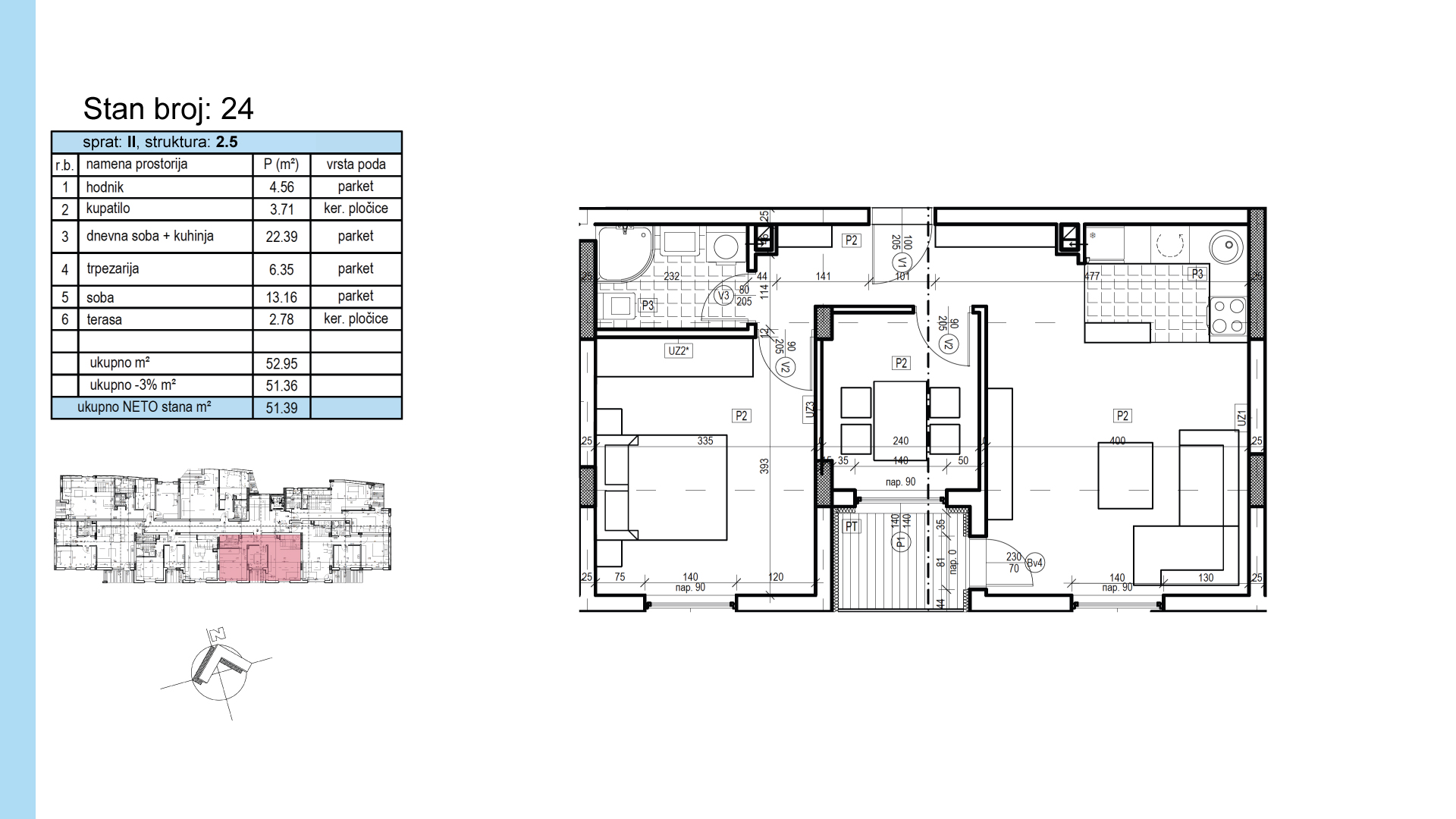
| S24 | 2 | 51 m² | 2 | Dostupan | Plan stana | |
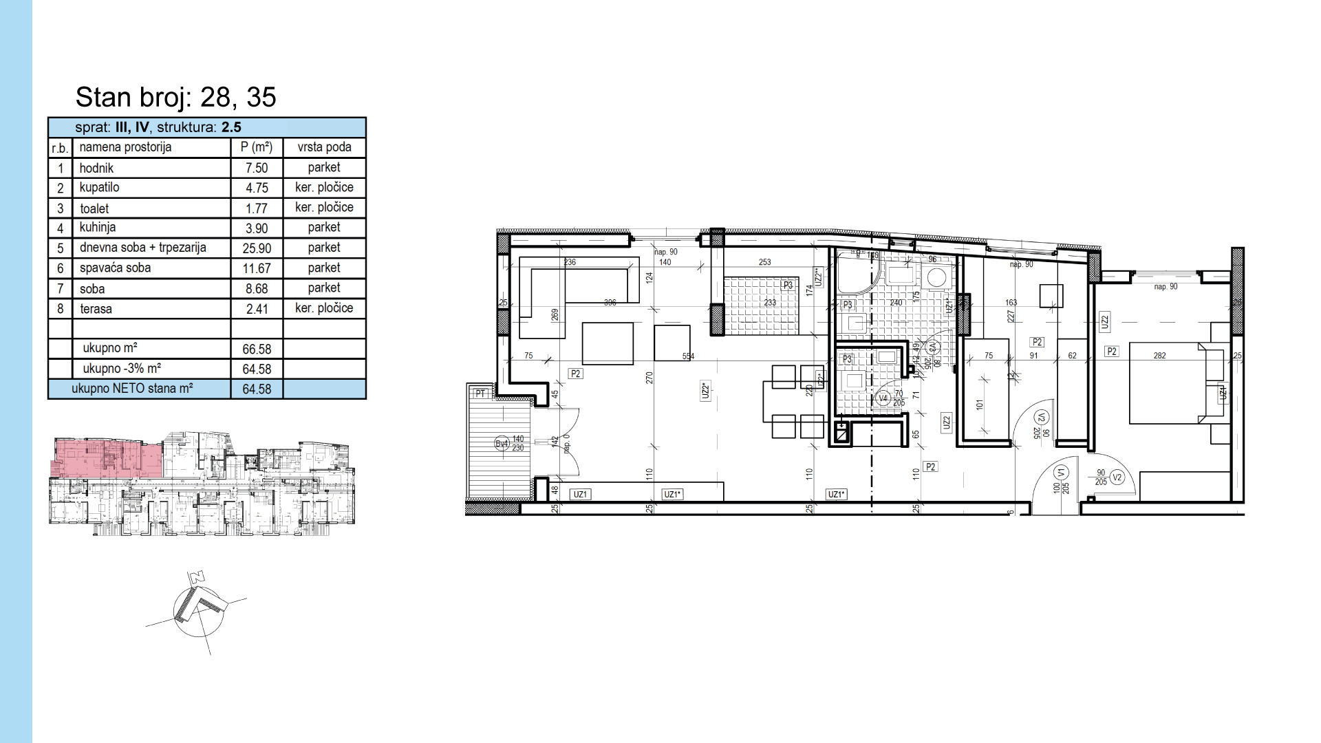
| S28, 35 | 3, 4 | 65 m² | 2 | Dostupan | Plan stana | |
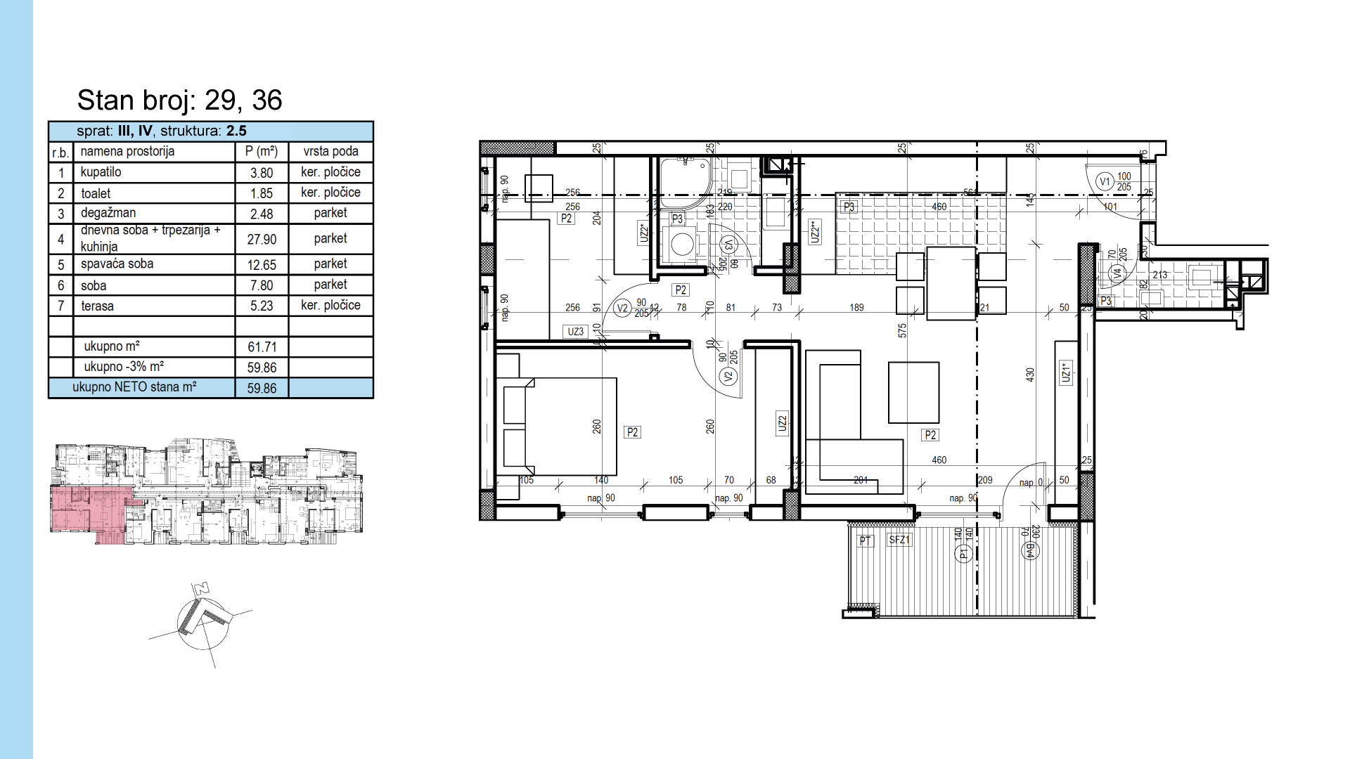
| S29, 36 | 3, 4 | 60 m² | 2 | Dostupan | Plan stana | |
| S30 | 3 | 49 m² | 2 | Dostupan | Plan stana | |
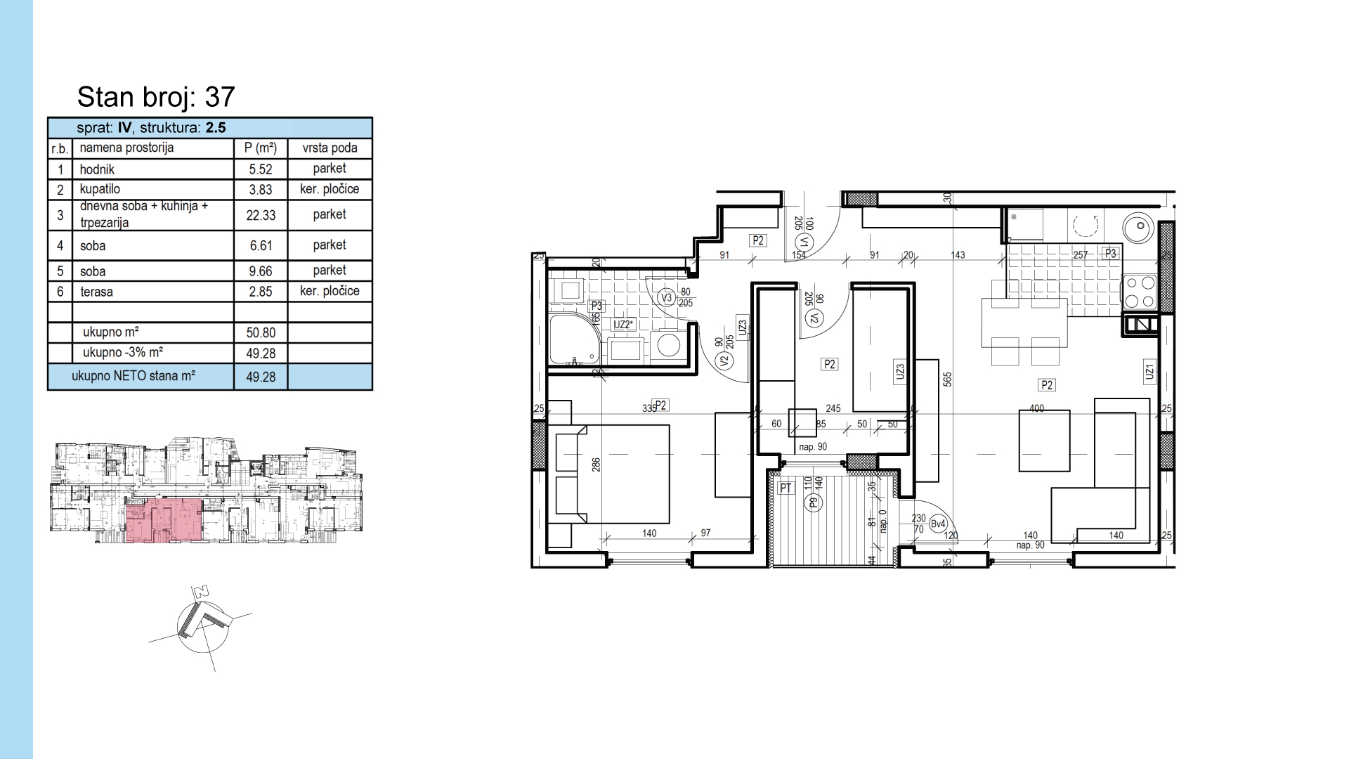
| S37 | 4 | 49 m² | 2 | Dostupan | Plan stana |
Pozovite City Expert prodajni tim za sve informacije 018 3 404 000
Kvalitet koji se meri preporukama
Zgradu realizuje građevinska firma sa više od 15 godina iskustva, poznata po primeni najviših standarda u gradnji. Termo blokovi sa poboljšanom izolacijom, PVC stolarija sa dvoslojnim niskoemisionim staklom, sigurnosna ulazna vrata, kvalitetne podne obloge garantuju dugovečnost i energetsku efikasnost. Lift, rampa za invalide, video nadzor i interfoni u svakom stanu doprinose sigurnosti i udobnosti svakodnevnog života.
- Fasadni zidovi od kvalitetnih termo blokova sa termičkom izolacijom
- Zidovi između stanova od otežanih blokova sa zvučnom izolacijom
- Demit fasada sa termo izolacijom od 10 cm
- PVC stolarija sa dvoslojnim niskoemisionim staklom
- ALU roletne
- Sigurnosna protivpožarna ulazna vrata
- Sobna vrata od medijapana
- Parket kao podna obloga
- Keramika u kupatilima i protivklizna keramika na terasama
- Konzolne WC šolje sa ugradnim vodokotlićima
- Walk-in tuš
- Instalacija za grejanje
- Montaža nosača i odvod kondenzata za klima uređaje
- Ostave uz stanove
Pozovite City Expert prodajni tim za sve informacije 018 3 404 000
Mir i povezanost na jednoj adresi
Nova zgrada je smeštena u mirnoj ulici na Panteleju, a opet u blizini Somborskog bulevara i svih ključnih sadržaja: vrtića, škola, pijaca, supermarketa i zdravstvenih ustanova. Centar grada je udaljen samo 3.5 km, što olakšava svakodnevni život za zaposlene, studente i sve aktivne ljude.
- Vrtić "Višnjica" - 600 m
- Vrtić "Vilin grad" - 800 m
- Osnovna škola "Čegar" - 1 km
- Osnovna škola "Miroslav Antić" - 1.5 km
- Ekonomska škola - 2 km
- Trgovinska škola - 2 km
- Ugostiteljska škola - 2 km
- Idea supermarket - 200 m
- Apoteka Beladona - 350 m
- Lidl - 1 km
- Durlanska pijaca - 1 km
- Benzinska stanica - 800 m
- Centar Niša - 3,5 km
Najtraženiji stanovi: od 20 m² do 65 m²
U ponudi su jednosobni, dvosobni stanovi i studio apartman, sa kvadraturama od 20 do 65 m². Svi stanovi imaju ostave, terase i funkcionalan raspored prostorija kako bi stanovanje bilo udobno i prijatno. Obezbeđena su parking i garažna mesta uz doplatu.
Parking
17 garažnih mesta i 62 parking mesta na parceli
Modeli plaćanja
Gotovinsko plaćanje
Plaćanje preko kredita
Plaćanje gotovinom: Dinamika isplata u dogovoru sa investitorom.
Kontaktirajte nas za više informacija: 018 3 404 000
Da, uz učešće od 20%.
Kontaktirajte nas za više informacija: 018 3 404 000
Potrebna vam je pomoć oko stambenog kredita? Potpuno besplatno!
Posetite: www.kreditnisavetnik.rs
Pozovite City Expert prodajni tim za sve informacije 018 3 404 000
Iskustvo i reputacija
Projekat realizuje građevinska firma sa dugogodišnjim iskustvom u izgradnji stambenih objekata visokog kvaliteta. Njihova filozofija se svodi na upotrebu najboljih materijala, kvalitetnu izvedbu u cilju zadovoljstva kupaca, što potvrđuju i svi prethodni projekti.
Potrebna vam je pomoć oko stambenog kredita? Potpuno besplatno!
Posetite: kreditnisavetnik.rs Ili nas pozovite: 011 44 25 000



