Novogradnja Beograd - Zvezdara
Prefinjena novogradnja u srcu Zvezdare
Stambeni objekat premium kvaliteta gradi se na Zvezdari, smeštajući se u mirnu i ušuškanu ulicu. Poseduje 2 lamele, između kojih se prostire uređeno dvorište kao privatna oaza zelenila za stanare. Novogradnja raspolaže većim i manjim stambenim jedinicama, raspona od 36 m² do 177 m², pružajući dugovečan kvalitet, modernost i elegantno dizajniran prostor za život.





Stanovi u ponudi
| Broj stana | Sprat | Površina | Spavaće sobe | Status | Plan | Cena |
|---|---|---|---|---|---|---|
| Lamela A - Stan 1 | Nisko prizemlje | 99 m² | 2 | Prodat | Plan stana | |
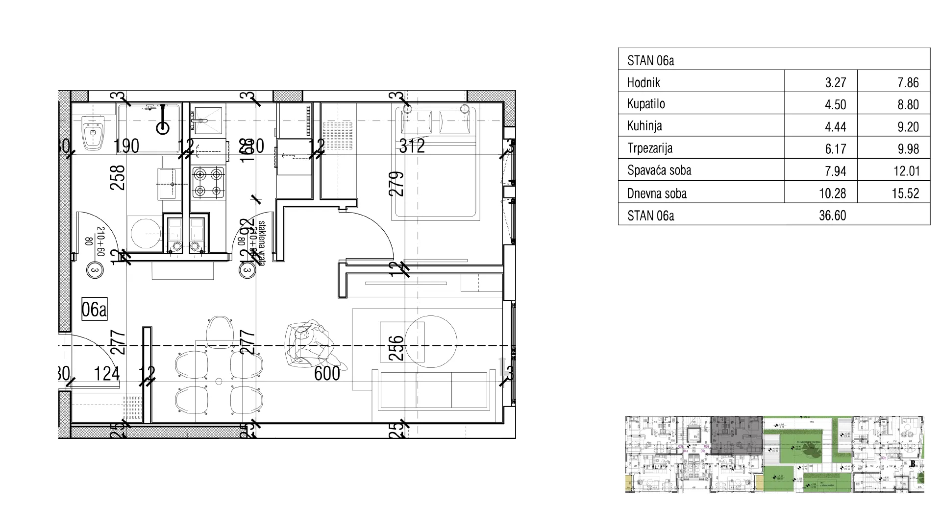
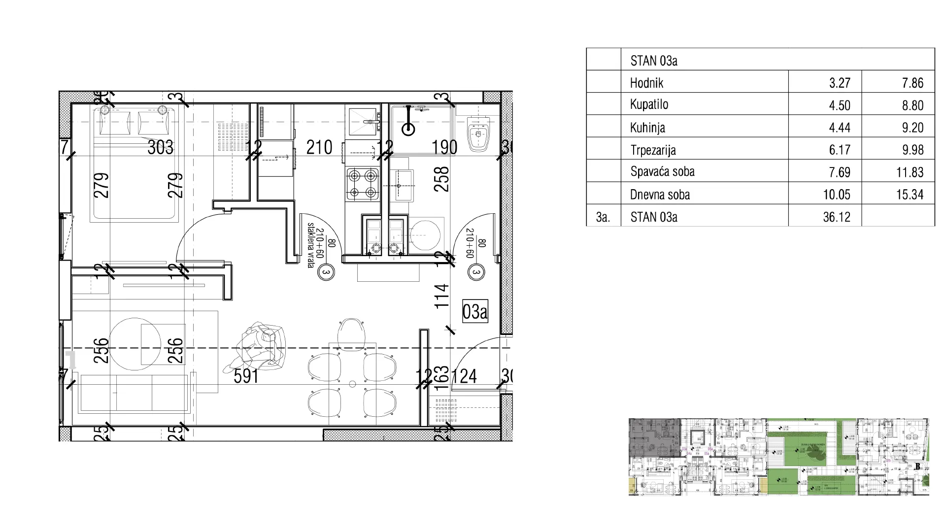
| Lamela A - Stan 3 | 1 | 36 m² | 1 | Prodat | Plan stana | |
| Lamela A - Stan 6 | 1 | 37 m² | 1 | Prodat | Plan stana | |
| Lamela A - Stan 8 | 2 | 43 m² | 1 | Prodat | Plan stana | |
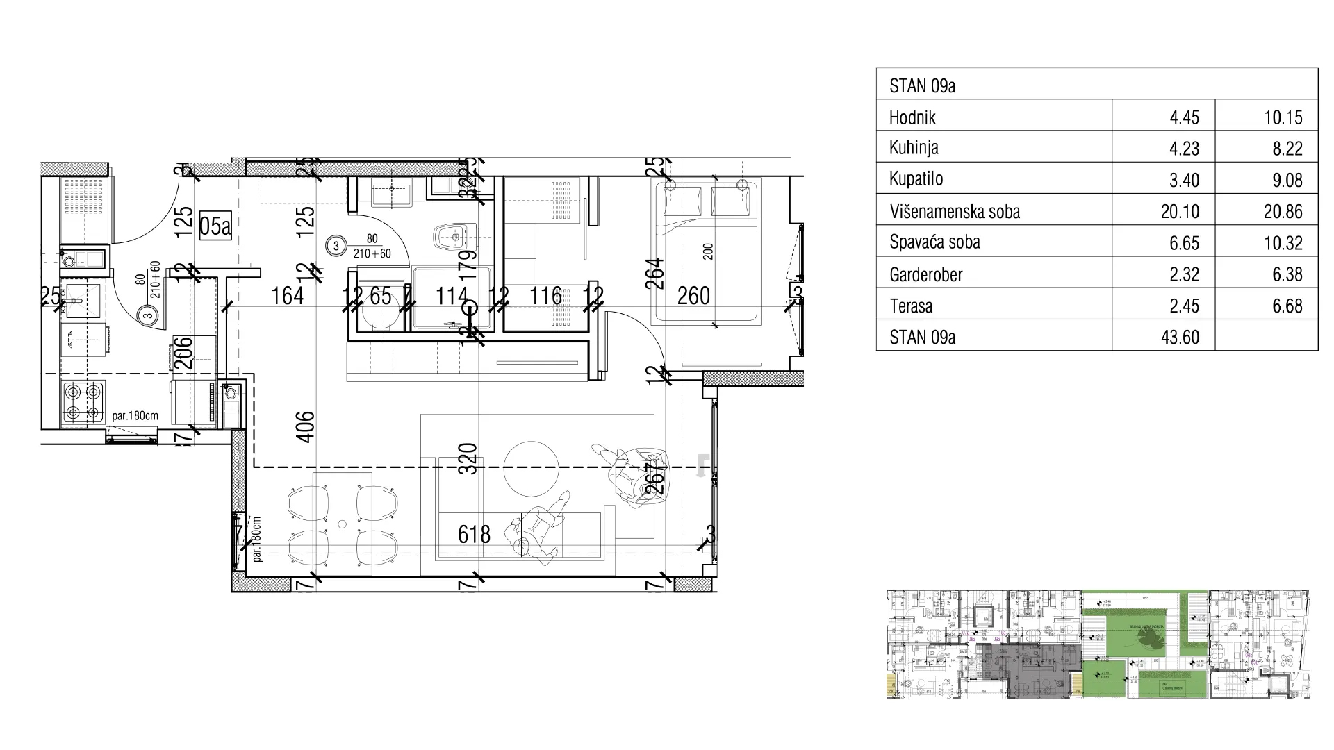
| Lamela A - Stan 9 | 2 | 44 m² | 1 | Prodat | Plan stana | |
| Lamela A - Stan 11 | 3 | 36 m² | 1 | Prodat | Plan stana | |
| Lamela A - Stan 12 | 3 | 43 m² | 1 | Prodat | Plan stana | |
| Lamela A - Stan 13 | 3 | 44 m² | 1 | Prodat | Plan stana | |
| Lamela A - Stan 14 | 3 | 37 m² | 1 | Prodat | Plan stana | |
| Lamela A - Stan 15 | 4 | 82 m² | 2 | Prodat | Plan stana | |
| Lamela A - Stan 16 | 4 | 83 m² | 2 | Prodat | Plan stana | |
| Lamela A - Stan 17 | 5 | 79 m² | 2 | Rezervisan | Plan stana | |
| Lamela A - Stan 18 | 5 | 80 m² | 2 | Rezervisan | Plan stana | |
| Lamela B - Stan 2 | Visoko prizemlje | 54 m² | 2 | Rezervisan | Plan stana | |
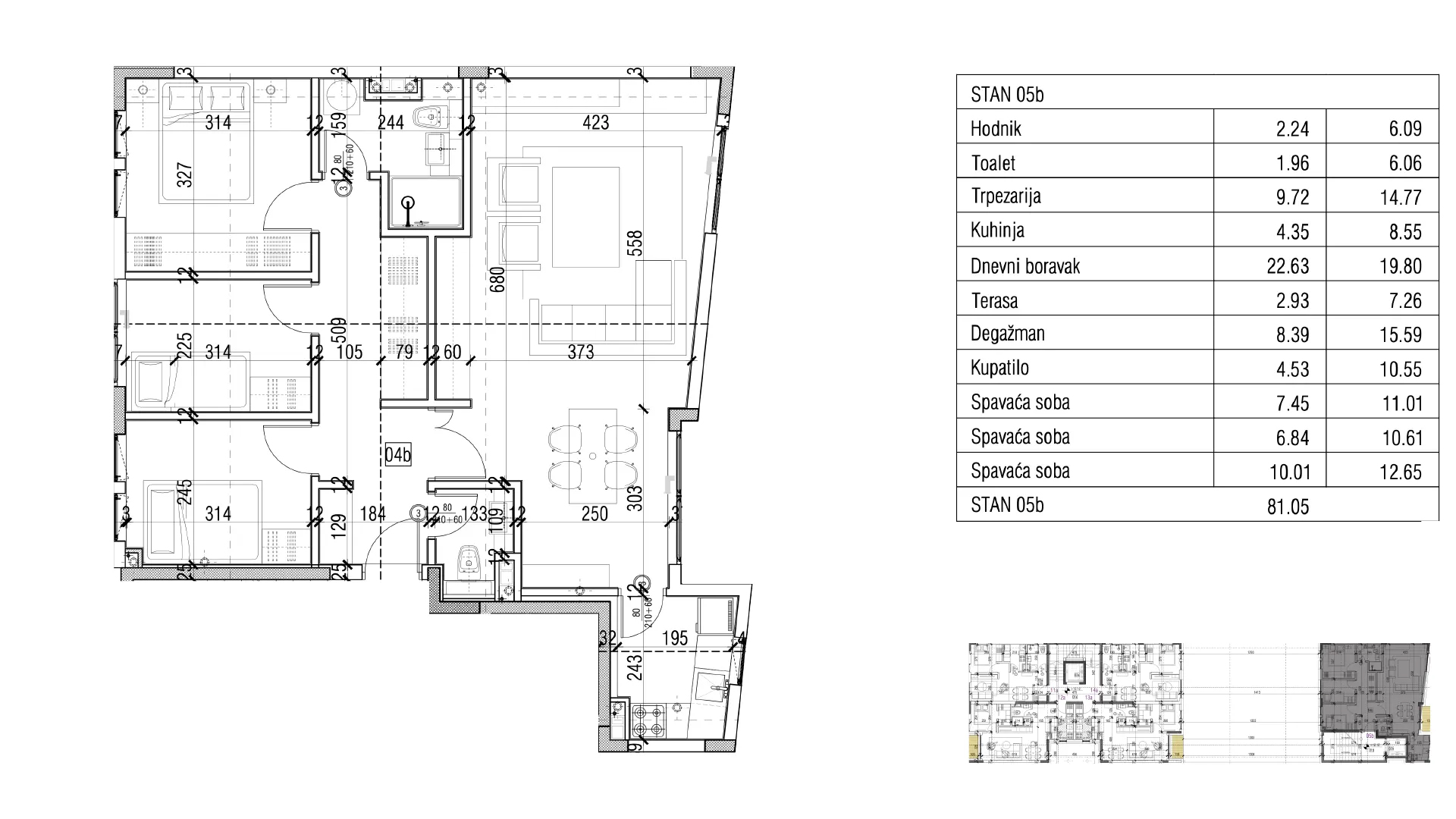
| Lamela B - Stan 5 | 2 | 81 m² | 3 | Dostupan | Plan stana | |
| Lamela B - Stan 6 | 3 | 81 m² | 3 | Prodat | Plan stana | |
| Lamela B - Stan 7 - Duplex | 4 | 161 m² | 4 | Dostupan | Plan stana |
Pozovite City Expert prodajni tim za sve informacije 011 44 26 000
Premium stambeni prostori
Počev od visokokvalitetne fasade koja se sastoji od kombinacije termo bloka, kamene vune i cigle do materijalizacije čitavog enterijera - ovaj stambeni objekat se izdvaja na tržištu primenom isključivo komponenti I klase. Sa naprednom zvučnom izolacijom, visinom plafona od 2.75 m i brendiranim ugradnim elementima, ovo je prostor koji predstavlja prvi i pravi izbor za život u Beogradu.
- Fasadni zidovi od kvalitetnih termo blokova i cigle
- Termoizolacija od tvrdopresovane kamene vune
- Premium sigurnosna ulazna vrata “Bosal”
- Enterijerska vrata od medijapana visokog kvaliteta visina 220 cm
- Hrastov višeslojni parket velikog formata, sa prirodnom teksturom i završnom lajsnom od MDF/a visine 6/8cm
- Kvalitetna ALU stolarija sa troslojnim niskoemisionim staklom i vrhunskim okovom, aluminijumske roletne
- Granitna keramika I klase većih dimenzija iz EU
- Sanitarije od premium bele keramike (Villeroy & Boch, Hans Grohe…)
- Niskopodne walk-in tuš kabine sa podnom kanalicom; tuš kabine sa paravanom od kaljenog stakla
- Grejanje na toplotne pumpe/etažno grejanje na struju u manjim jedinicama
Pozovite City Expert prodajni tim za sve informacije 011 44 26 000
Adresa na kojoj ćete iskusiti Beograd na pravi način!
Na samo 5 minuta hoda od Vukovog spomenika, adresa ove moderne novogradnje predstavlja jednu od najomiljenijih lokacija za život u prestonici, a veoma je pogodna i za investicionu kupovinu. Okruženje poseduje sve što je potrebno za sadržajan i dinamičan život, od dečijih ustanova do brojnih lokala, uslužnih delatnosti i gradskih znamenitosti.
- Vrtić "Kuća malih stopala" - 200 m
- Оsnovna škola "Ivan Goran Kovačić" - 700 m
- Zubotehnička škola - 300 m
- Pijaca Đeram - 500 m
- Idea supermarket - 500 m
- Dom zdravlja Zvezdara - 700 m
- Banka, pošta - 300 m
- Non stop Fitness - 400 m
- Vukov spomenik - 650 m
Ekskluzivno iskustvo stanovanja
Ova novogradnja pruža sve što treba da poseduje prestižan savremen dom - lokaciju blizu centra grada, vrhunski kvalitet i elegantnu estetiku. Stanovi su raspoređeni u dve lamele, između kojih se nalazi zeleno uređeno dvorište. Projekat poseduje najrazličitije strukture i površine stanova, od 36 m² do 177 m², uz koje je moguće kupiti garažna mesta na podzemnim nivoima.
Garažna mesta
Podzemna garaža na dva nivoa.
Modeli plaćanja
Gotovinsko plaćanje
Plaćanje preko kredita
Gotovinski na rate: 50%+30%+20%
Kontaktirajte nas za više informacija: 011 44 26 000
Kontaktirajte nas za više informacija: 011 44 26 000
Potrebna vam je pomoć oko stambenog kredita? Potpuno besplatno!
Posetite: www.kreditnisavetnik.rs
Pozovite City Expert prodajni tim za sve informacije 011 44 26 000
Impresivni rezultati u domenu novogradnje
Investitorska kompanija je dugogodišnji partner u nizu uspešnih projekata stanogradnje, a sada s punom posvećenošću grade luksuzan stambeni projekat na Zvezdari. Impresivna estetika i vrhunski kvalitet privlače kupce ka njihovim objektima, koji nastavljaju da postavljaju standarde luksuza i ekskluzivnosti u građevinskoj industriji.
Potrebna vam je pomoć oko stambenog kredita? Potpuno besplatno!
Posetite: kreditnisavetnik.rs Ili nas pozovite: 011 44 25 000

























