Novogradnja Niš - Palilula
Moderna zgrada u užem centru Niša
U izgradnji je savremena stambena zgrada smeštena u jednoj od najtraženijih gradskih zona Niša. U neposrednoj blizini osnovne škole, Pravnog i Ekonomskog fakulteta, kao i Tržnog centra Kalča, predstavlja odličnu priliku kako za porodično stanovanje, tako i za investicionu kupovinu. U ponudi su stanovi površine od 31m² do 55m², projektovani tako da zadovolje potrebe savremenog gradskog života.




Stanovi u ponudi
| Broj stana | Sprat | Površina | Spavaće sobe | Status | Plan | Cena |
|---|---|---|---|---|---|---|
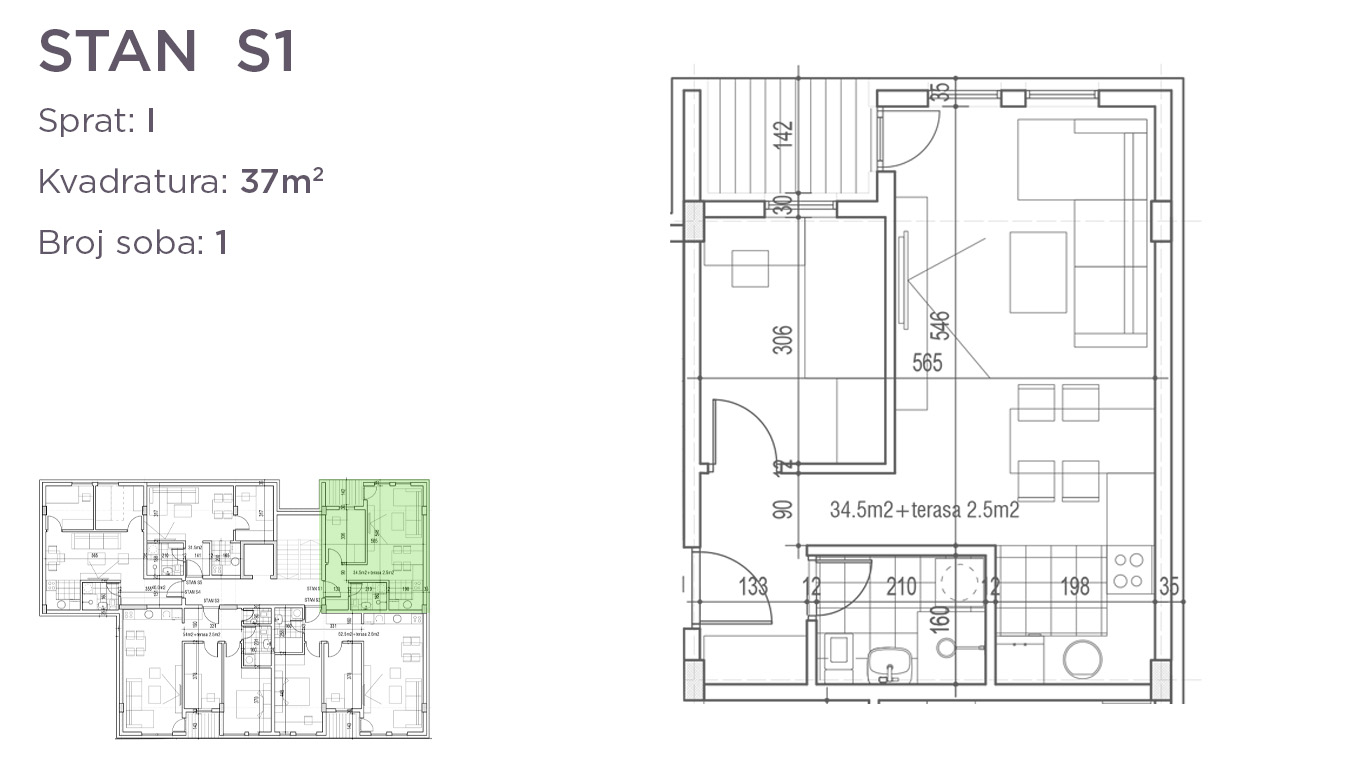
| Stan 1 | 1 | 37 m² | 1 | Prodat | Plan stana | |
| Stan 2 | 1 | 55 m² | 2 | Prodat | Plan stana | |
| Stan 4 | 1 | 40 m² | 2 | Prodat | Plan stana | |
| Stan 5 | 1 | 32 m² | 1 | Prodat | Plan stana | |
| Stan 9 | 2 | 40 m² | 2 | Prodat | Plan stana | |
| Stan 10 | 2 | 32 m² | 1 | Prodat | Plan stana | |
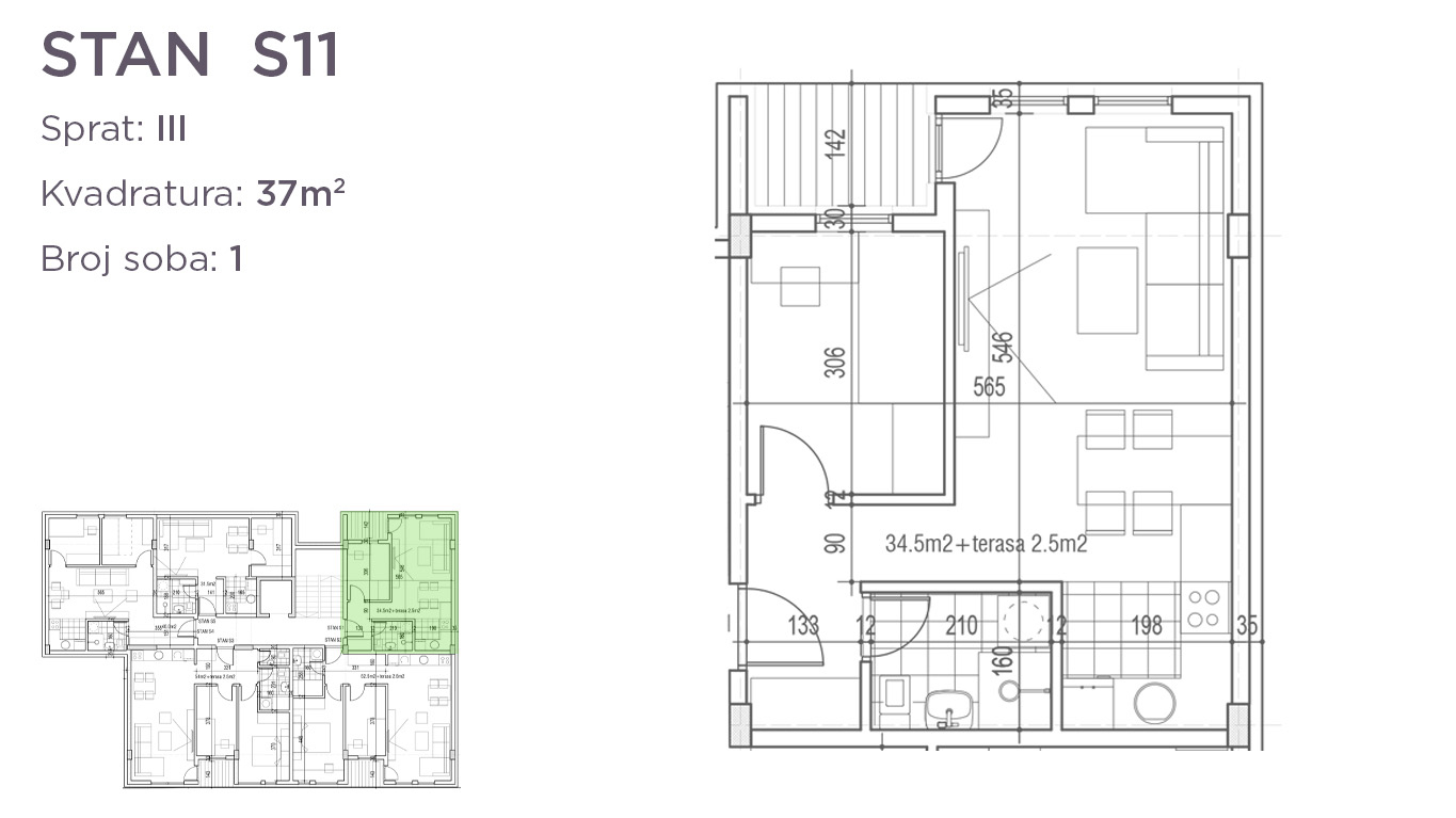
| Stan 11 | 3 | 37 m² | 1 | Prodat | Plan stana | |
| Stan 12 | 3 | 55 m² | 2 | Prodat | Plan stana | |
| Stan 14 | 3 | 40 m² | 2 | Prodat | Plan stana | |
| Stan 15 | 3 | 32 m² | 1 | Prodat | Plan stana | |
| Stan 16 (+ 6 m² terasa) | 4 | 31 m² | 0.5 | Dostupan | Plan stana | |
| Stan 17 (+ 39 m2 terasa) | 4 | 71 m² | 2 | Dostupan | Plan stana |
Pozovite City Expert prodajni tim za sve informacije 018 3 404 000
Kvalitetna i energetski efikasna gradnja
Objekat se sastoji od ukupno 19 stambenih jedinica, a trenutno je izgrađen do nivoa drugog sprata. Kupcima je omogućeno da biraju završnu podnu oblogu u stanu – parket ili SPC laminat (plastificirana varijanta drveta). Zgrada i enterijeri projektovani su u skladu sa savremenim standardima gradnje, uz posebnu pažnju na komfor, energetsku efikasnost i moderan izgled.
- Fasada: Termoizolacija debljine 12 cm
- Međuspratna izolacija: Termoizolacioni sloj (stiropor)
- Zvučna izolacija: Fono blok u zidovima između stanova
- Stolarija: PVC, šestokomorna
- Stakla: Dvoslojna, niskoemisiona
- Roletne: Aluminijumske, ugrađene
- Ulazna vrata: Sigurnosna
- Unutrašnja vrata: Medijapan
- Podovi u sobama i hodnicima: Parket ili SPC laminat – po izboru kupca
- Kupatila i terase: Granitna keramika renomiranih proizvođača
- Keramika na terasama: Protivklizna, prilagođena za spoljašnji prostor
- Sanitarije: Konzolne WC šolje sa ugradnim vodokotlićima
Pozovite City Expert prodajni tim za sve informacije 018 3 404 000
Lokacija od velike vrednosti
Objekat je smešten na izuzetno dobro razvijenoj mikrolokaciji, u neposrednoj blizini svih ključnih sadržaja – prodavnica, osnovnih škola, vrtića i najtraženijih fakulteta. Zbog ovih prednosti, stanovi u okviru ovog projekta predstavljaju atraktivnu priliku kako za kratkoročno, tako i za dugoročno izdavanje. Lokacija je posebno pogodna za studente, mlade profesionalce, ali i porodice koje teže kvalitetnom i balansiranom životu u gradskom centru.
- OŠ Kralj Petar I – 210 m
- Apelacioni sud – 160 m
- Tržni centar Kalča – 1 km
- Pravni i Ekonomski fakultet – 900 m
- Budući Lidl – na nekoliko minuta hoda
Idealne kvadrature za život ili investiciju
Nova zgrada nudi najtraženije kvadrature na tržištu – počev od 31 m² sa odvojenom spavaćom sobom i 40 m² sa dve spavaće sobe. Svaka stambena jedinica ima i prateću ostavu koja doprinosi funkcionalnosti prostora. Stanovi ove strukture retko su dostupni u centralnom delu grada, posebno kada je reč o novogradnji visokog kvaliteta.
Parking
Parking mesta za stanare obezbeđena na parceli
Modeli plaćanja
Gotovinsko plaćanje
Plaćanje preko kredita
Po dogovoru.
Kontaktirajte nas za više informacija: 018 3 404 000
Da, po sledećim uslovima:
- Za učešće od 50%, cena po kvadratnom metru ostaje nepromenjena.
- Za učešće od 20%, cena se uvećava za 20 € po m² u odnosu na osnovnu cenu.
Kontaktirajte nas za više informacija: 018 3 404 000
Potrebna vam je pomoć oko stambenog kredita? Potpuno besplatno!
Posetite: www.kreditnisavetnik.rs
Pozovite City Expert prodajni tim za sve informacije 018 3 404 000
Potrebna vam je pomoć oko stambenog kredita? Potpuno besplatno!
Posetite: kreditnisavetnik.rs Ili nas pozovite: 011 44 25 000




