Novogradnja Novi Sad - Stari grad
Vrhunski standard gradnje i stanovanja
U samom centru Novog Sada, na samo nekoliko minuta hoda od Zmaj Jovine i gradskog šetališta, gradi se novi stambeni projekat prvoklasnog kvaliteta. Predstavlja više od stambenog prostora – to je investicija u budućnost i život u centru dešavanja. Usled velikog interesovanja, većina stanova rezervisana je već u fazi pretprodaje. Enterijeri će biti opremljeni premium materijalima, a sama zgrada će biti izgrađena prema najvišim standardima, pružajući udobnost i sigurnost stanarima.




Stanovi u ponudi
| Broj stana | Sprat | Površina | Spavaće sobe | Status | Plan | Cena |
|---|---|---|---|---|---|---|
| Stan 1 | Prizemlje | 49 m² | 1 | Dostupan | Plan stana | |
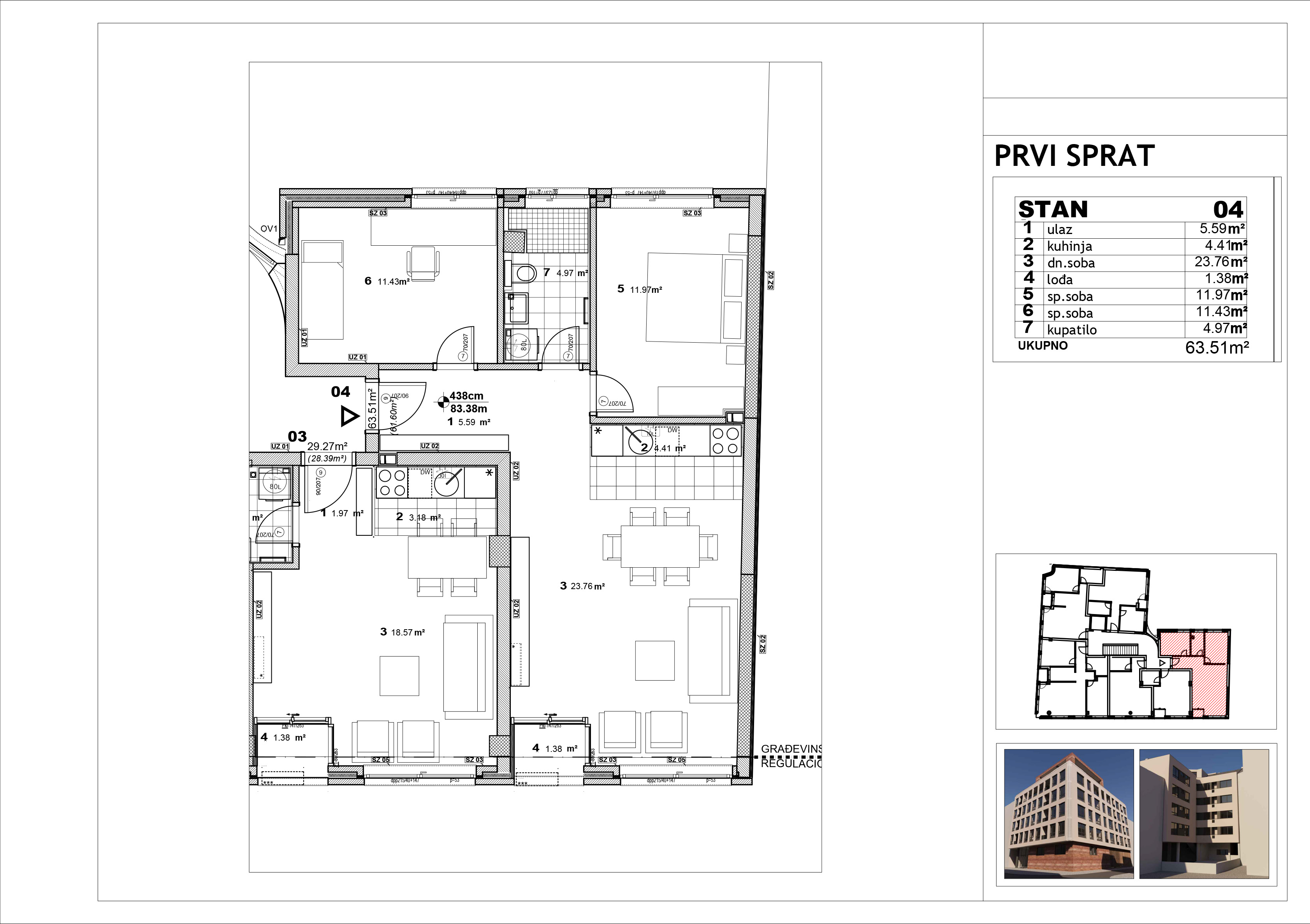
| Stan 4 | 1 | 63 m² | 2 | Dostupan | Plan stana | |
| Stan 5 | 1 | 45 m² | 1 | Dostupan | Plan stana | |
| Stan 6 | 1 | 49 m² | 1 | Dostupan | Plan stana | |
| Stan 10 | 2 | 45 m² | 1 | Dostupan | Plan stana | |
| Stan 11 | 2 | 49 m² | 1 | Prodat | Plan stana | |
| Stan 12 | 2 | 91 m² | 3 | Prodat | Plan stana | |
| Stan 16 | 3 | 49 m² | 1 | Prodat | Plan stana | |
| Stan 17 | 3 | 91 m² | 3 | Prodat | Plan stana | |
| Stan 19 | Potkrovlje | 65 m² | 2 | Dostupan | Plan stana | |
| Stan 20 | Potkrovlje | 43 m² | 1 | Dostupan | ||
| Stan 22 | Potkrovlje | 102 m² | 3 | Dostupan |
Pozovite City Expert prodajni tim za sve informacije 021 3 400 400
Kvalitet i luksuz
Stanovi su opremljeni prvoklasnim materijalima – italijanskom keramikom, troslojnim hrastovim parketom i aluminijumskom stolarijom antracit boje. Atipični prozori velikih formata sa niskim parapetima pružaju maksimalnu osvetljenost u prostorijama i prelep pogled na okolinu. Sigurnosni sistem sa video nadzorom u svakom stanu, napredna izolacija, kao i centralno grejanje sa kalorimetrima, obezbeđuju maksimalan komfor i sigurnost.
- Parket: Troslojni parket od hrasta sa prirodnom teksturom i završnom lajsnom
- Keramika: Italijanska keramika u enterijeru, protivklizna keramika na terasama (uz mogućnost izbora u okviru ponuđene palete)
- Sigurnosna ulazna vrata
- Bela enterijerska vrata od medijapana
- Aluminijumska stolarija, višekomorna, sa dvoslojnim niskoemisionim staklom i vrhunskim okovom antracit boje
- Centralno gradsko grejanje sa kalorimetrima za individualno podešavanje temperature
- Zvučna izolacija: Zidana konstrukcija velike mase u kombinaciji sa kamenom vunom
- Sanitarije: Prvoklasni ugradni elementi iz EU; akrilne kade u kupatilima
- Lift: Jedan električni putnički lift koji povezuje sve etaže, uključujući podzemnu garažu
- Staklene ograde na terasama sa sigurnosnom folijom
- Video nadzor: Kamere na svim ulazima u zgradu i video nadzor u svakom stanu
Pozovite City Expert prodajni tim za sve informacije 021 3 400 400
Život u centru dešavanja
Smešten na samo 200 metara od Zmaj Jovine ulice i centralne pešačke zone, ovaj projekat se nalazi na jednoj od najprestižnijih i najtraženijih lokacija u gradu. U neposrednoj blizini su sve pogodnosti urbanog života – prodavnice, restorani, kafići, kulturni sadržaji i sve što je potrebno za savremen ritam života. Odlična saobraćajna povezanost omogućava brz i jednostavan pristup svim ključnim tačkama Novog Sada.
- Srednja škola "Svetozar Miletić" - 400 m
- Gimnazija "Tvrđava" - 300 m
- Gimnazija "Jovan Jovanović Zmaj" - 700 m
- Akademija umetnosti Novi Sad - 500 m
- Srpsko narodno pozorište - 250 m
- Lilly apoteka - 250 m
- Futoška pijaca - 550 m
- Dunavski park - 1 km
Stambene jedinice od 45 m² do 105 m²
U ponudi su dvosobni, trosobni i četvorosobni stanovi kvadratura u rasponu od 45 m² do 105 m², pažljivo osmišljeni da odgovore na različite životne potrebe – od manjih jedinica idealnih za investiranje, do prostranih porodičnih domova. Na podzemnoj i prizemnoj etaži objekta su smeštene garaže odakle se liftom direktno ide na željeni sprat.
Garažna mesta
Modeli plaćanja
Gotovinsko plaćanje
Plaćanje preko kredita
Po dogovoru.
Kontaktirajte nas za više informacija: 021 3 400 400
Kontaktirajte nas za više informacija: 021 3 400 400
Potrebna vam je pomoć oko stambenog kredita? Potpuno besplatno!
Posetite: www.kreditnisavetnik.rs
Pozovite City Expert prodajni tim za sve informacije 021 3 400 400
Stabilnost, kvalitet, poverenje
Investitor projekta je posvećen stvaranju visokokvalitetnih poslovno-stambenih objekata koji savršeno odgovaraju potrebama savremenog života. Sa čvrstim temeljem u građevinskoj industriji i dugogodišnjim iskustvom, u saradnji sa renomiranim partnerima, stručnjacima sa više od 20 godina prisustva na tržištu, kompanja se ističe postojanim pristupom i posvećenošću kvalitetu.
Potrebna vam je pomoć oko stambenog kredita? Potpuno besplatno!
Posetite: kreditnisavetnik.rs Ili nas pozovite: 011 44 25 000








