
Novogradnja Stari grad - Stambeni objekat u ulici Dunavska 70
KUPITE STAN BEZ PROVIZIJE, DIREKTNO OD INVESTITORA
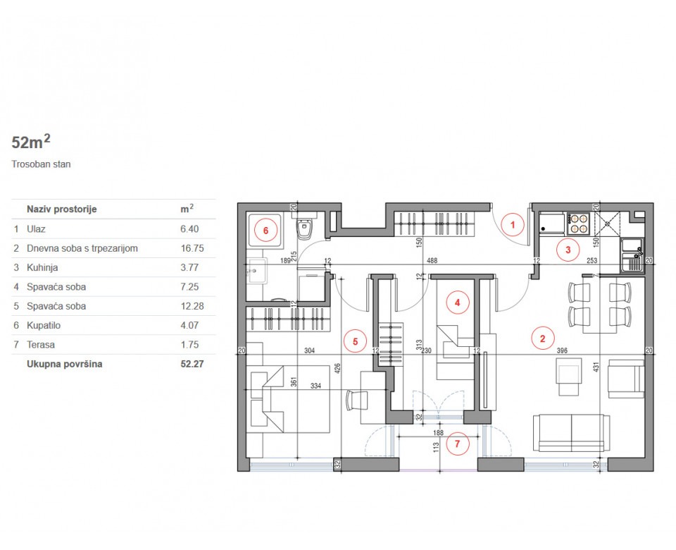
Najbolja investiciona prilika za poslednji odmah useljiv stan
Investitor “Dobra gradnja d.o.o.” vam predstavlja LUX poslovno-stambeni objekat Dunavska 70, građen po najvišim standardima, na ekskluzivnoj lokaciji na Dorćolu. Ovaj završen i odmah useljiv objekat je idealan izbor za stanovanje, ali i za investiciju s obzirom na to da lokacija pruža odlične mogućnosti za izdavanje nekretnine.
Iskoristite sjajnu priliku - ostala su samo tri stana od 78 m²
Nekretnine su oduvek bile sigurna investicija, ali ne donosi svako ulaganje u nekretninu i sigurnu zaradu. Zato je važno da investirate pametno i prepoznate najbolju investicionu priliku. Takva prilika nalazi se u srcu Starog gradu, mestu okupljanja, glavnih gradskih dešavanja i mogućnosti da se za par minuta hoda izmestite iz gužve u mir i prelepe poglede na Dunav.
Povoljna kupovina za kreditne kupce
Useljenje u nov stan je uzbudljiv proces, ali sama potraga za najpovoljnijim stambenim kreditom zna da izazove glavobolje. Uz pomoć naših Kreditnih savetnika u roku od 24 sata dobićete više ponuda najpovoljnijih stambenih kredita uz najnižu kamatu već od 2,2%!
Završetak radova: januar 2021.
Podzemna garaža
Buduće stanare očekuje dovoljan broj parking mesta u podzemnoj garaži, sa komfornom dvosmernom prilaznom rampom i sa grejačima za otapanje snega. Garaža je potpuno protivpožarno opremljena sprinkler sistemom, detektorima ugljen dioksida i sistemom za ventilaciju i odimljavanje. Svakom parking sistemu pripada po jedno električno brojilo i elektro-priključak. Nemački parking sistem klackalica WOHR obezbeđuje maksimalan komfor korišćenja garaže. Kupovina parking mesta nije obavezna.
CENA parking mesta
14.000€ + PDV - Donja etaža
16.000€ + PDV - Gornja etaža
Pozovite City Expert agenta prodaje za sve informacije 011 44 26 000
Luksuz u svakom detalju
Zvučna izolacija između stanova je Akustik blok od čak 54 dB. Fasada, prilazi, zajednički prostori, dvorišni deo objekta i stepenište su osvetljeni LED rasvetom. Grejanje je centralno, preko toplana, sa ugrađenim kalorimetrima za kontrolu potrošnje. Sigurnost je na visokom nivou, jer je obezbeđen video nadzor celog objekta i garaže, kao i prostor za portira. I još:
- Sigurnosna ulazna vrata za svaki stan
- Spoljna stolarija sa roletnama - aluminijumski profili + nisko-emisiona stakla
- Video interfon za svaki stan
- Visina plafona 280 cm, a visina vrata 220 cm
- Svaki stan je klimatizovan zasebnim klima uređajima - split sistem
- Hrastov parket prve klase
- Vrhunska uvozna keramika
- Bešumne kanalizacione cevi, ugradni vodokotlići i baterije visokog kvaliteta
- Elektro oprema - modularna serija visokog kvaliteta
Besprekorna lokacija
Zgrada je ušuškana u mirnom delu Donjeg Dorćola. Na par minuta hoda se nalaze svi dorćolski sadržaji neophodni za komforan, lep i savremen život u centru Beograda. To ovu lokaciju čini idealnim izborom kako za stanovanje, tako i kao investiciju, s obzirom na odlične mogućnosti izdavanja nekretnine.
- Shop&Go – 250 m
- Dorćol Platz – 600 m
- Crkva Sv. Aleksandra Nevskog – 750 m
- Muzej nauke i tehnike – 800 m
- Dynamic Health & Sport club – 800 m
- Bajloni pijaca – 850 m
- Skadarlija – 1 km
- Bulevar despota Stefana – 1 km
- Dom zdravlja Stari Grad – 1,2 km
- Trg Republike – 1,3 km
Potrebna vam je pomoć oko stambenog kredita? Potpuno besplatno!
Posetite: kreditnisavetnik.rs Ili nas pozovite: 011 44 25 000
















