Novogradnja Niš - Crveni pevac
Moderna zgrada sa samo 12 stanova!
U jednoj od najtraženijih zona Niša, blizu tržnog centra Delta i parka Čair, nalazi se moderna stambena zgrada koja spaja urbanu dinamiku i svakodnevni komfor. Projekat sa svega 12 stanova pruža pravu meru privatnosti, što ga čini idealnim izborom za kvalitetan porodični život ili sigurnu investiciju. Ovo je adresa na kojoj ste u centru svih dešavanja, a ipak u sopstvenom miru.





Stanovi u ponudi
| Broj stana | Sprat | Površina | Spavaće sobe | Status | Plan | Cena |
|---|---|---|---|---|---|---|
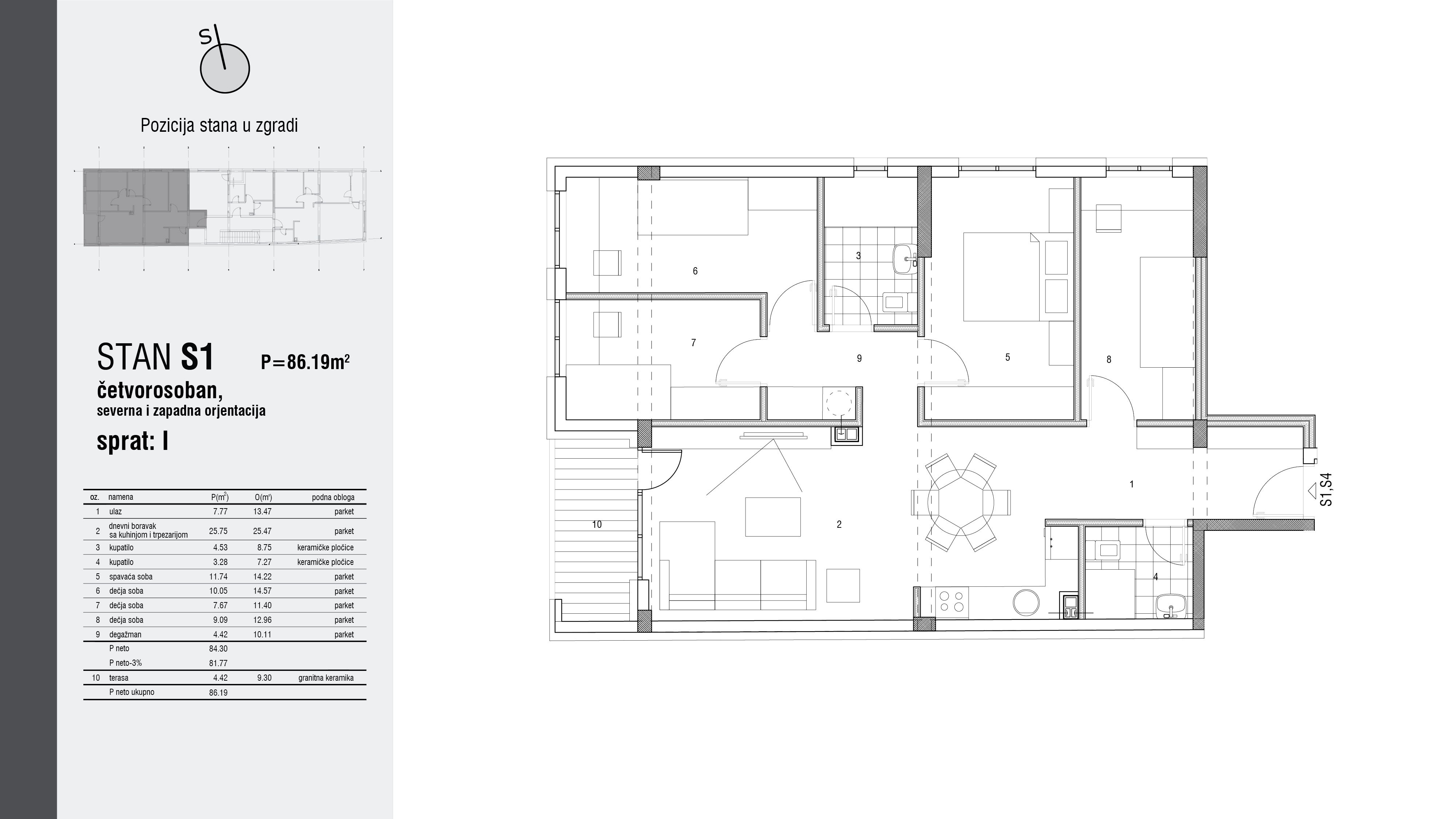
| S1 | 1 | 86 m² | 4 | Dostupan | Plan stana | |
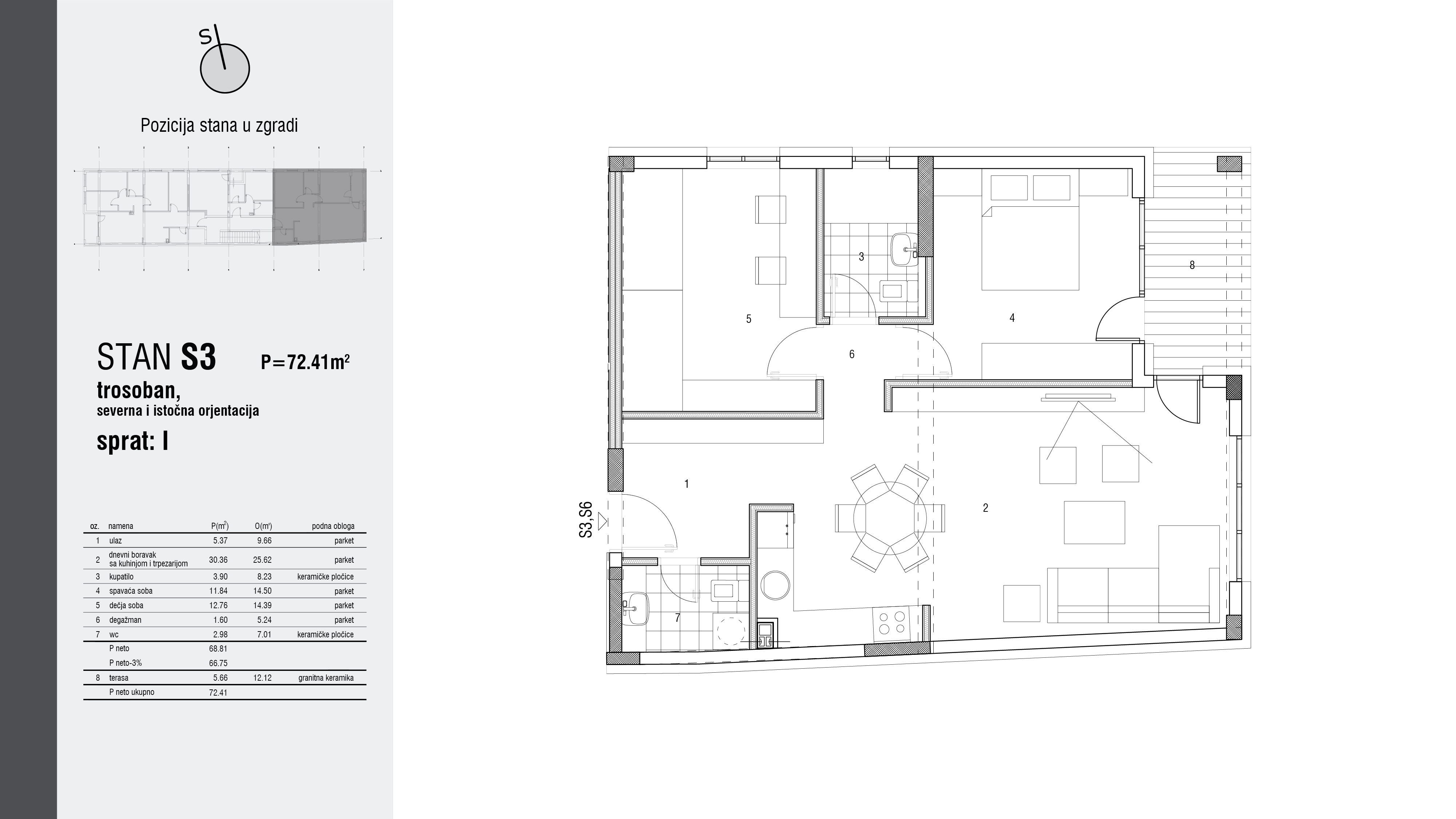
| S3 | 1 | 72 m² | 2 | Dostupan | Plan stana | |
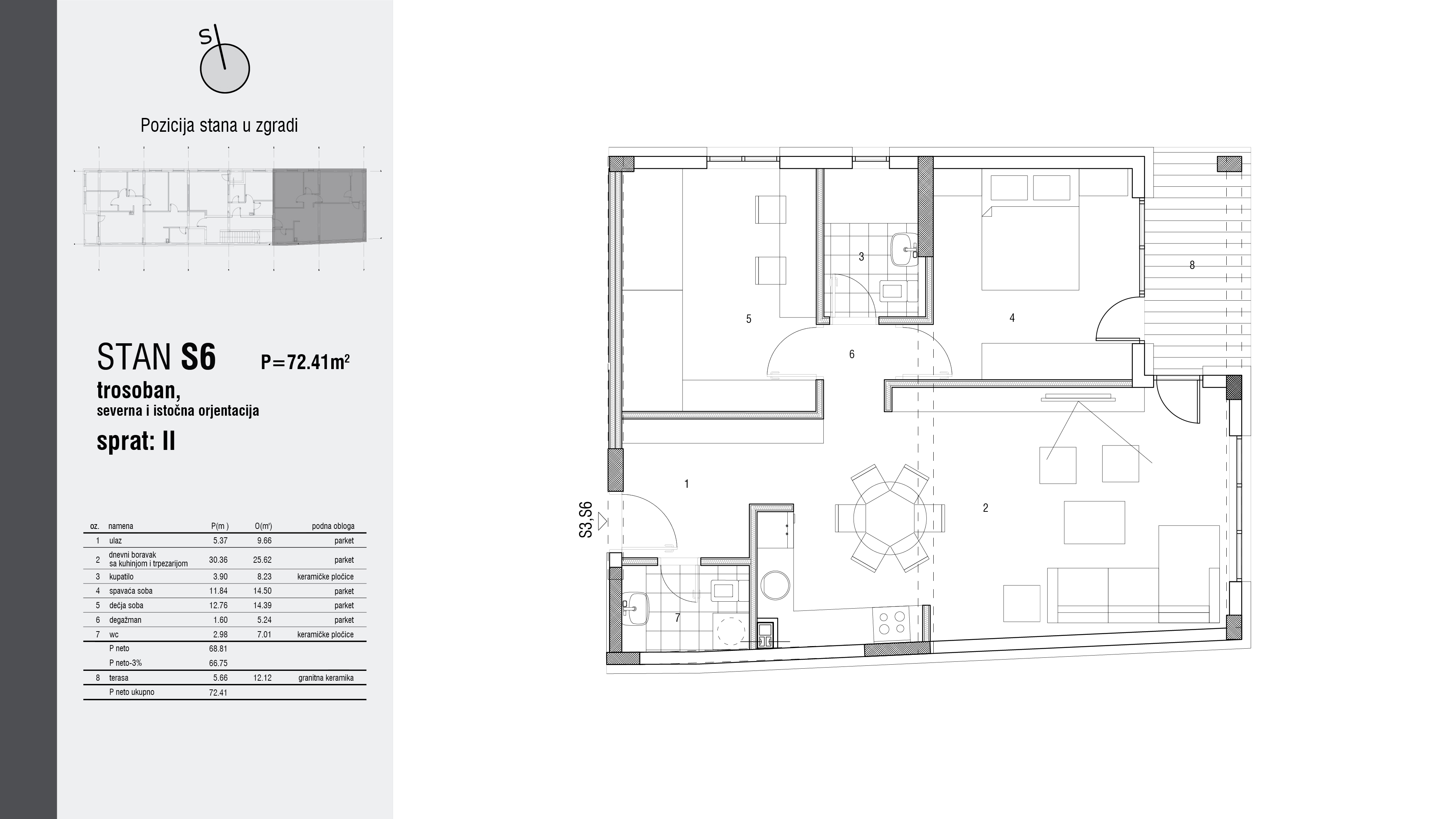
| S6 | 2 | 72 m² | 2 | Dostupan | Plan stana | |
| S10 | 4 | 65 m² | 2 | Dostupan | Plan stana | |
| S11 | 4 | 52 m² | 1 | Dostupan | Plan stana | |
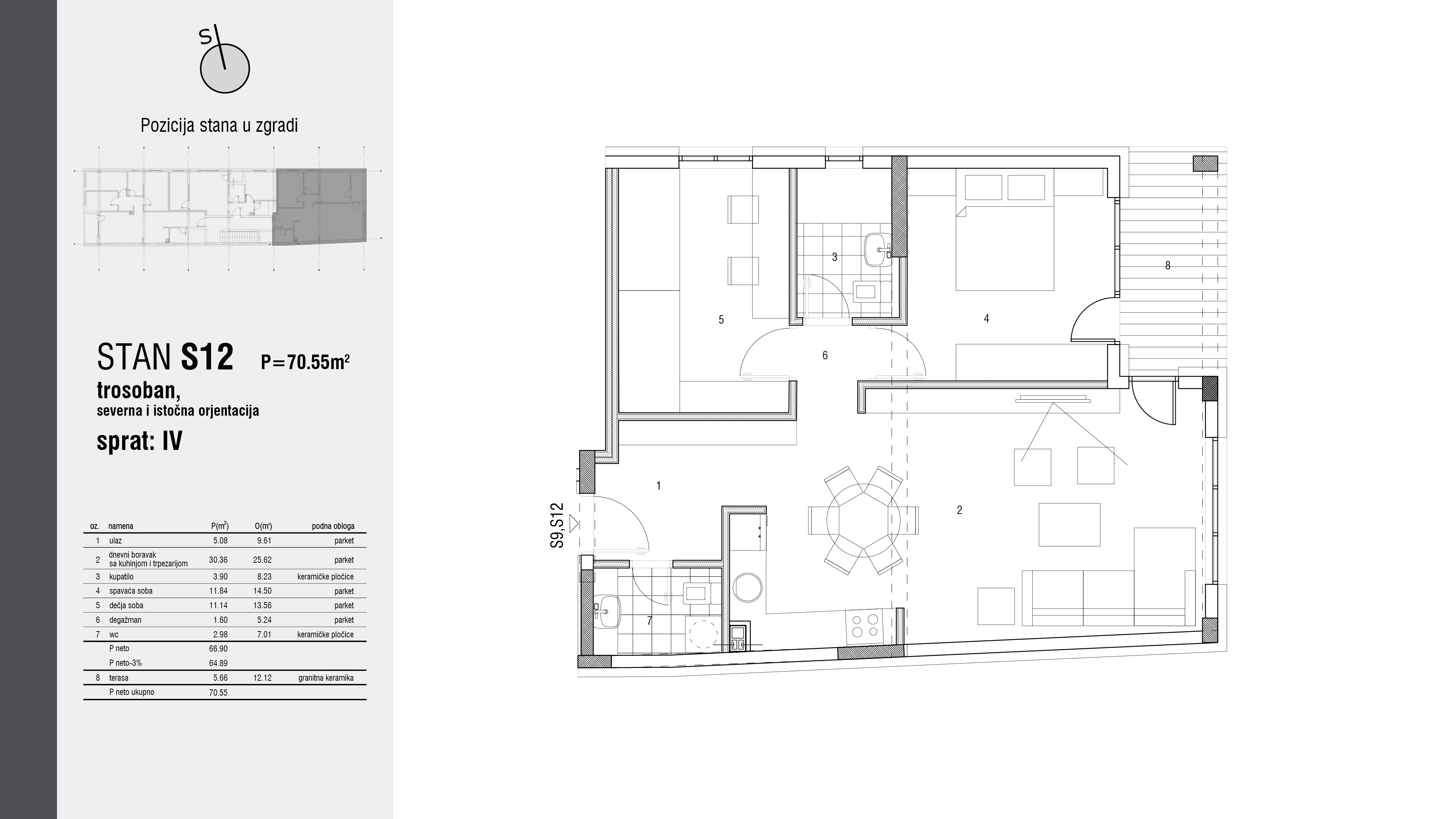
| S12 | 4 | 71 m² | 2 | Dostupan | Plan stana |
Pozovite City Expert prodajni tim za sve informacije 018 3 404 000
Oprema vrhunskog standarda
Gradnja ovog projekta započeta je na temeljima pažljivo planirane arhitekture koja spaja funkcionalnost i dugoročnu vrednost, uz primenu kvalitetnih materijala i pouzdanu izvedbu. Objekat manje spratnosti i obima poseduje lift, video nadzor i kvalitetnu infrastrukturu. Svakom stanu će pripasti po jedna podrumska ostava.
- Demit sistem sa termoizolacijom (blok debljine 25 cm)
- Pregradni zidovi od bloka debljine 12 cm
- Međuspratna izolacija od stiropora
- PVC šestokomorna stolarija sa troslojnim staklom i kvalitetnim okovom
- Aluminijumske roletne
- Metalna sigurnosna ulazna vrata (atestirana)
- Sobna vrata od farbanog medijapana
- Višeslojni parket u sobama i hodnicima
- Granitne pločice u kupatilima i na terasama (protivklizne na terasama)
- Keramika renomiranih evropskih proizvođača (Italija/Španija)
- Terase sa metalnim ogradama (kombinacija parapet + metal)
- Centralno grejanje sa kalorimetrima
- Instalacija za klima uređaje
- Sanitarije visokog kvaliteta evropskih proizvođača
Pozovite City Expert prodajni tim za sve informacije 018 3 404 000
Odlično povezana lokacija
Objekat se nalazi na jednoj od najtraženijih lokacija u Nišu - Crveni pevac, u neposrednoj blizini tržnih centara, obrazovnih i kulturnih ustanova. Nadomak bulevara Nemanjića, ova adresa omogućava odličnu povezanost sa svim delovima grada i sve urbane sadržaje na pešačkoj udaljenosti.
- OŠ „Vožd Karađorđe" – 900 m
- Niška gimnazija „Stevan Sremac" – 900 m
- Gimnazija „Bora Stanković" – 900 m
- Vrtić „Palčić" – 900 m
- TC Delta – 500 m
- Park Svetog Save – 1 km
- TC Kalča – 1 km
Svetli i prostrani porodični stanovi
U ponudi su stanovi različitih struktura, od dvoiposobnih do prostranog četvoroiposobnog porodičnog stana. Kvadrature se kreću od 64 m² do 86 m², uz optimalan raspored prostorija koji obezbeđuje maksimalnu iskorišćenost i udobnost u svakodnevnom životu. Većina stanova poseduje terase i dvostranu orijentaciju prozora, što unosi izobilje svetlosti i prozračnosti u enterijere.
Parking mesta
Parking mesta na parceli.
Modeli plaćanja
Gotovinsko plaćanje
Plaćanje preko kredita
Dinamika plaćanja u dogovoru sa investitorom.
Kontaktirajte nas za više informacija: 018 3 404 000
Da, sa učešćem od minimalno 20%.
Kontaktirajte nas za više informacija: 018 3 404 000
Potrebna vam je pomoć oko stambenog kredita? Potpuno besplatno!
Posetite: www.kreditnisavetnik.rs
Pozovite City Expert prodajni tim za sve informacije 018 3 404 000
O investitoru
Investitor je fizičko lice u sistemu PDV, sa višegodišnjim iskustvom u izgradnji manjih porodičnih stambenih objekata. Do sada je realizovao približno 10 projekata, sa fokusom na zgrade do 15 stanova, što govori o kontinuitetu i stabilnom iskustvu u ovoj oblasti. Njegov pristup gradnji zasniva se na pažljivoj realizaciji i kontrolisanom kvalitetu u svim fazama projekta.
Potrebna vam je pomoć oko stambenog kredita? Potpuno besplatno!
Posetite: kreditnisavetnik.rs Ili nas pozovite: 011 44 25 000



