
APARTMENT IN ZVEZDARA?
New building in 17 Đevđelijska street, Belgrade
- ALL APARTMENTS ARE SOLD -

New building in 17 Đevđelijska street, Belgrade
- ALL APARTMENTS ARE SOLD -
"Zlatibor - gradnja Beograd" is a construction company founded in 1961. They have built over 200 building projects since then. Every year, they enrich their portfolio by creating new constructions throughout the country.
* with the possibility of VAT refund for buyers of the first apartment
Completion: December 2020
There will be 22 garage spaces in the underground garage. The garage entrance is from the southeast side of the building from Branko Krsmanović street, and the garage is accessible by elevator.
For all information, call the City Expert sales agent! 011 44 26 000
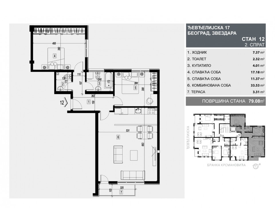
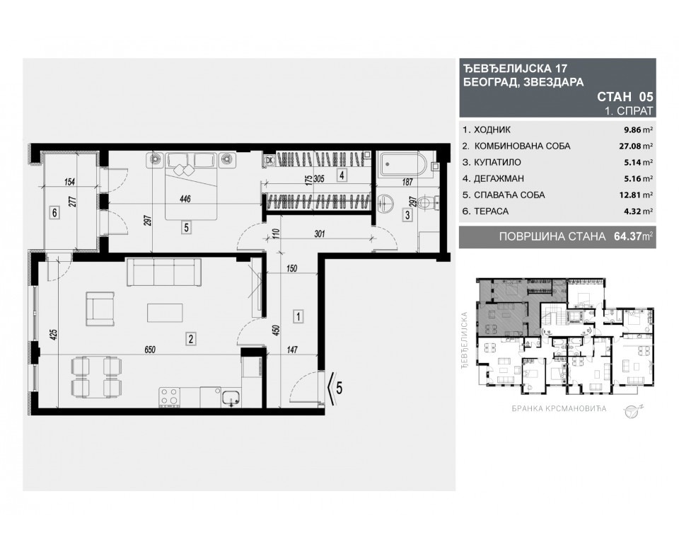
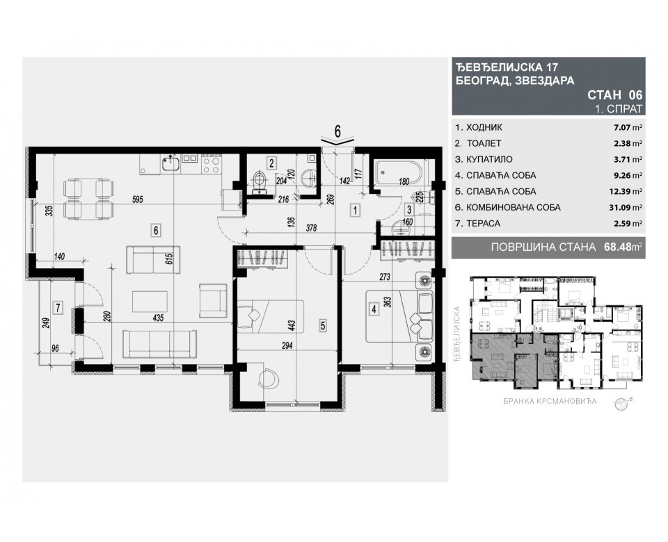
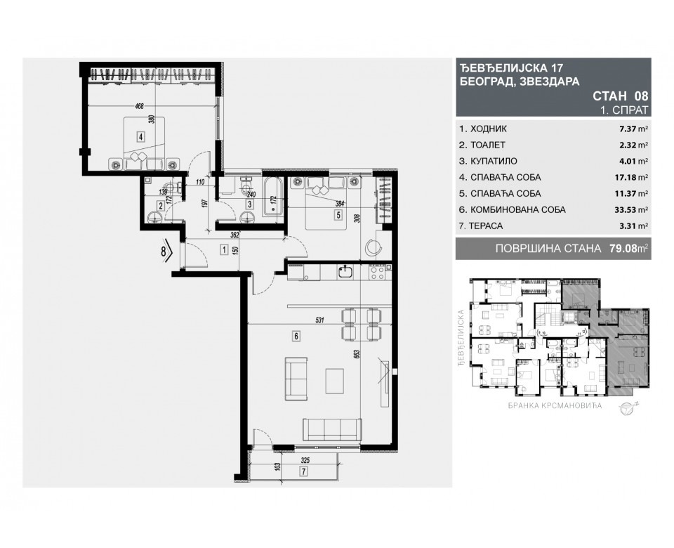
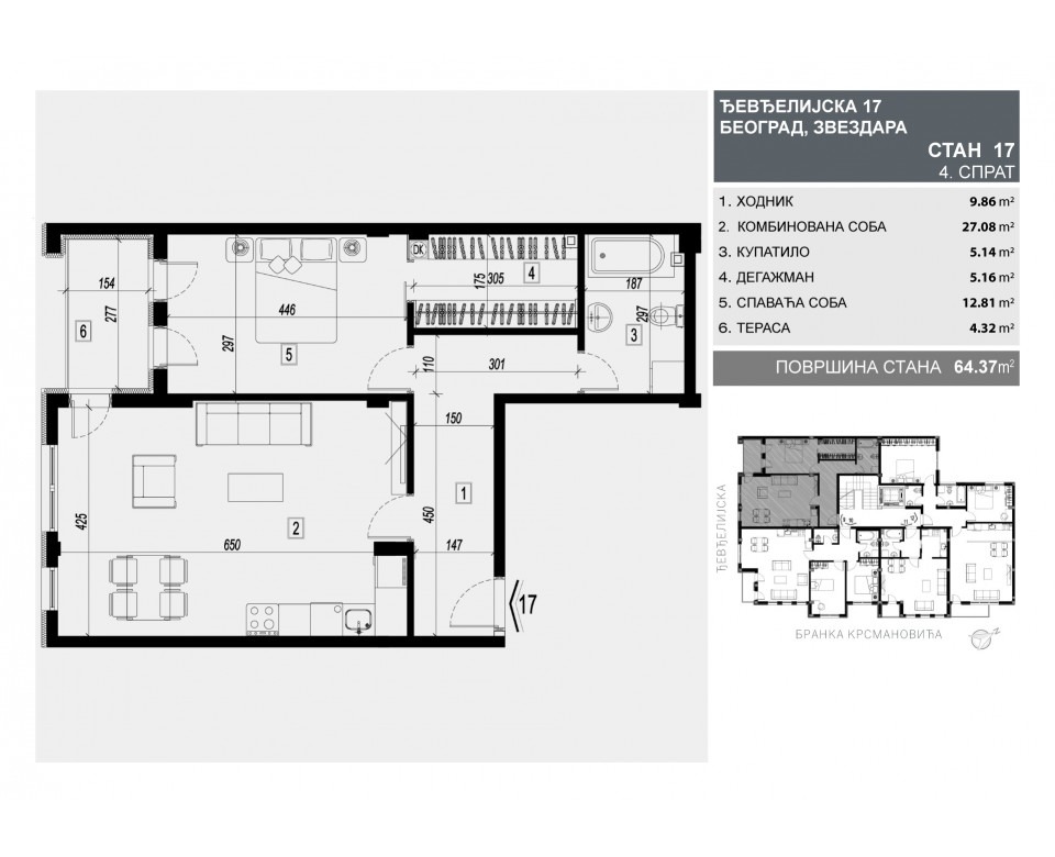
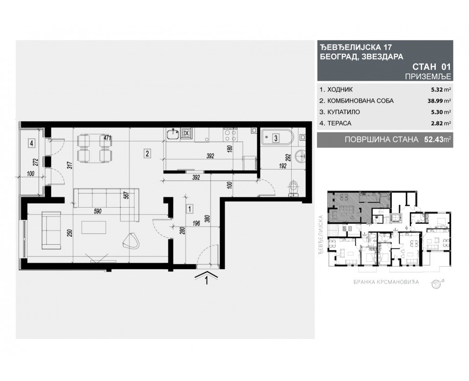
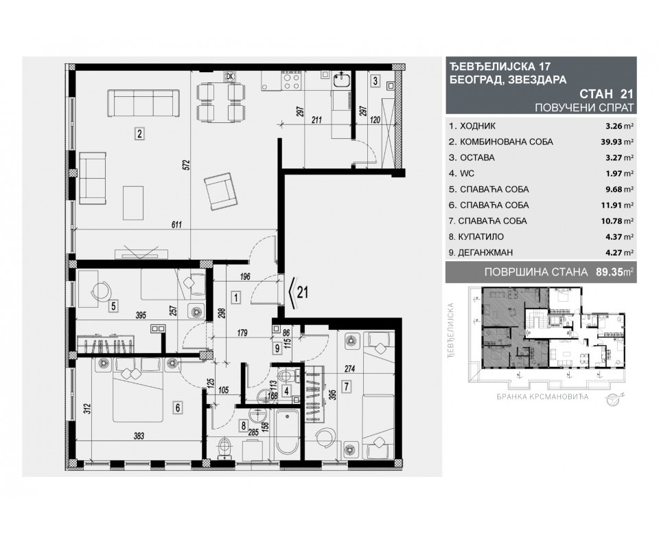
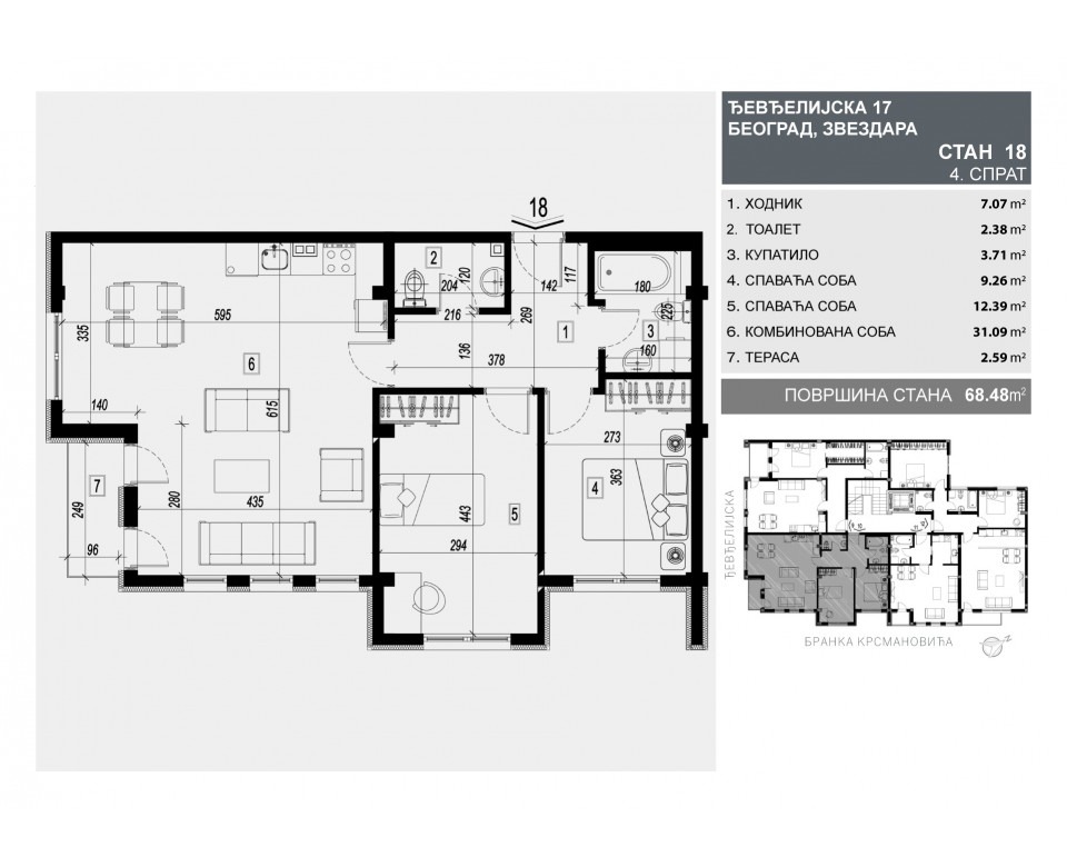
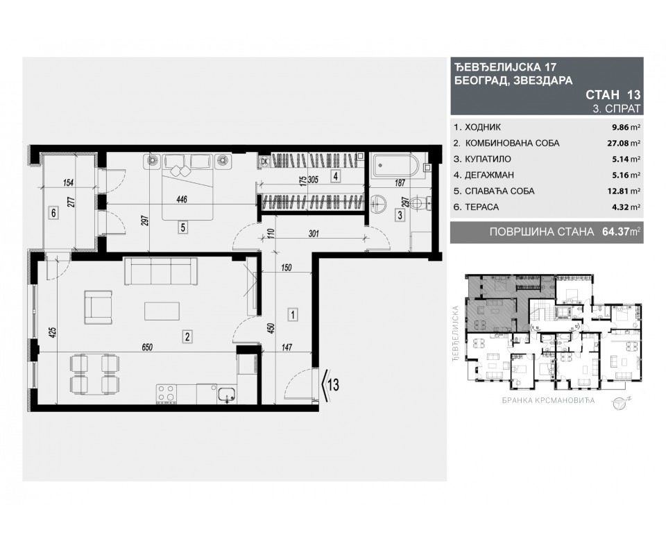
The exact location of the new building is at the intersection of Đevđelijska and Branko Krsmanović streets. It has a ground floor, four floors with four standard apartments, and a secluded floor with two larger residential units. Following the highest construction standards, the builders used only high-quality materials for the building's interior and exterior parts. The building has superior thermal and sound insulation, enabling energy efficiency and saving money for future tenants. The equipment of all apartments is also carefully and well planned:
The new building is near Bulevar Kralja Aleksandra and Đeram market. Bulevar Kralja Aleksandra is one of Belgrade's busiest streets, offering many shops, restaurants, bookstores, and cafes. In short, everything is very close.
Public transportation: